yituLogo
当前的位置:首页 > 室内CAD图纸 > cad > 工装图纸 > 办公空间 > 城建图书馆设计CAD施工图,办公空间CAD施工图纸下载

图纸介绍

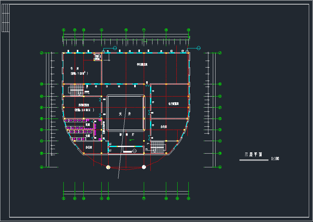
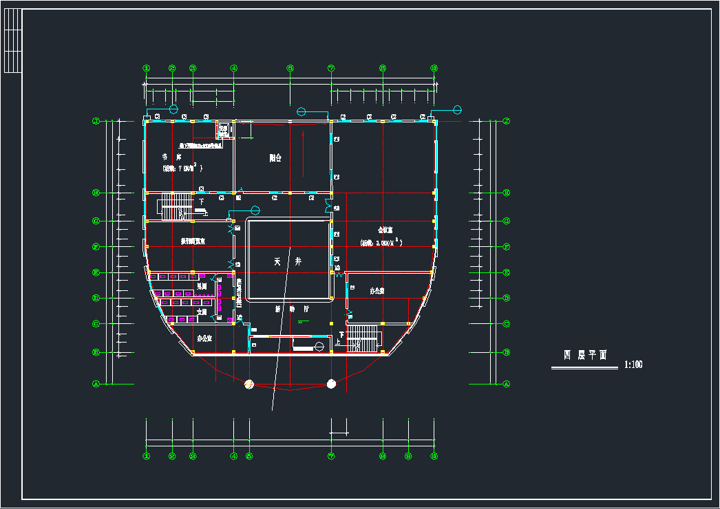
城建图书馆设计CAD施工图,办公空间CAD施工图纸下载内容简介:文件的内容包含图书馆设计CAD施工图,这其中图纸细节详尽丰富,相对而言具有较的参考价值与学习价值,方便用于学习参考

部分图片:

84.png

施工图

 

9390a3dda7ada240a48a6592187d3746.png

施工图

 

828eff52906b4d180232d444d63bf69d.png

施工图

 

d709dd58bf6534e0ca969e3bd9d50789.png

施工图

 

4a0fc268c02cb0c5bd41081b09c52afe.png

施工图

 

eee9a18024a9b972dd4053fb998926ef.png

施工图

 

城建图书馆设计CAD施工图,办公空间CAD施工图纸下载

ID:19871
软     件:sketchup 大     小:0.40MB 上 传 时 间:20191123 消 耗 积 分:30
  • 收藏 ()
  • 评论 ()
  • ⚠图纸报错

join19 普通会员

关注
图纸使用权利说明:

会员在本站下载的原创CAD图库后,只拥有CAD图库的使用权,著作权归原作者及易图网所有。未经合法授权,会员不得以任何形式发布、传播、复制、转售该CAD图库。特别地,不得擅自以易图网名义或使用"易图"、"易图网"(本站注册商标)名称发布、复制、转售所下载的CAD图库,由此给本站造成损害的,本站将依法追究其相关法律责任。

友情链接 热门模型 免费模型