yituLogo
当前的位置:首页 > 室内CAD图纸 > cad > 工装图纸 > 办公空间 > 现代公司办公室办公楼工装办公空间施工图CAD图纸,办公楼CAD设计图纸下载

图纸介绍

                                    空间划分:成套办公空间                                                          办公类型:办公室

                                   图纸深度:施工图                                                                      图纸格式:JPG

                                   设计风格:现代

资料为:现代公司办公室办公工装办公空间施工图CAD图纸

资料内容包括:全套施工图、大样图、前台横剖图、前台立面图、前台平面图、前台纵剖图、等,空间设置合理规范,具有较高的参考价值,可作为参考学习的模板,供设计师、建筑师下载参考。

部分图纸展示如下:

大样图.jpg

 

大样图

 

<a href=https://www.yitu.cn/sketchup/qiantaijiedai/index.html target=_blank class=infotextkey><a href=https://www.yitu.cn/su/7014.html target=_blank class=infotextkey>前台</a></a>横剖图.jpg

 

前台横剖图

 

<a href=https://www.yitu.cn/sketchup/qiantaijiedai/index.html target=_blank class=infotextkey><a href=https://www.yitu.cn/su/7014.html target=_blank class=infotextkey>前台</a></a>立面图.jpg

 

前台立面图

 

<a href=https://www.yitu.cn/sketchup/qiantaijiedai/index.html target=_blank class=infotextkey><a href=https://www.yitu.cn/su/7014.html target=_blank class=infotextkey>前台</a></a><a href=https://www.yitu.cn/su/7392.html target=_blank class=infotextkey>平面</a>图.jpg

 

前台平面

 

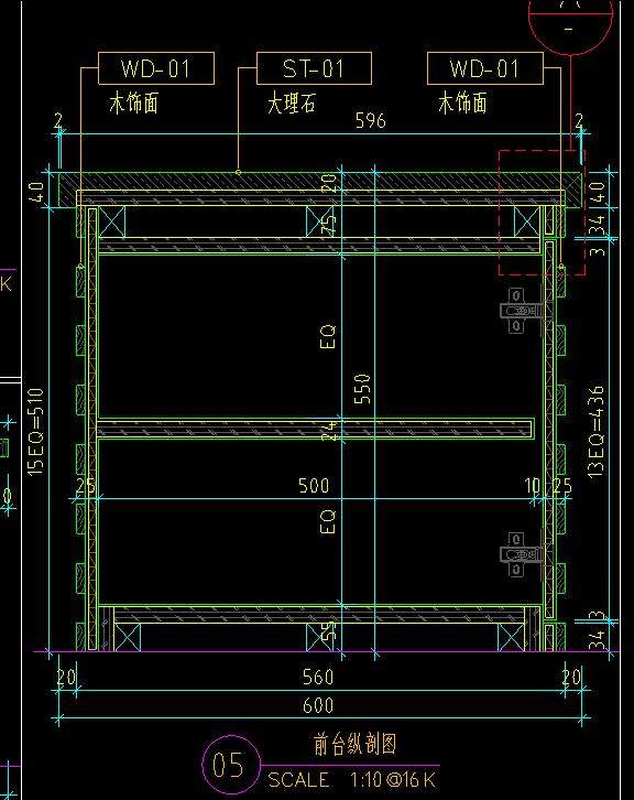
<a href=https://www.yitu.cn/sketchup/qiantaijiedai/index.html target=_blank class=infotextkey><a href=https://www.yitu.cn/su/7014.html target=_blank class=infotextkey>前台</a></a>纵剖图.jpg

 

前台纵剖图

 

<a href=https://www.yitu.cn/sketchup/qiantaijiedai/index.html target=_blank class=infotextkey><a href=https://www.yitu.cn/su/7014.html target=_blank class=infotextkey>前台</a></a>纵剖图1.jpg

 

前台纵剖图

现代公司办公室办公楼工装办公空间施工图CAD图纸,办公楼CAD设计图纸下载

ID:91719
软     件:sketchup 大     小:2.40MB 上 传 时 间:20211111 消 耗 积 分:20
  • 收藏 ()
  • 评论 ()
  • ⚠图纸报错

qianqian 普通会员

关注
  • 户外垃圾桶
  • 户外垃圾桶
  • 户外垃圾桶
图纸使用权利说明:

会员在本站下载的原创CAD图库后,只拥有CAD图库的使用权,著作权归原作者及易图网所有。未经合法授权,会员不得以任何形式发布、传播、复制、转售该CAD图库。特别地,不得擅自以易图网名义或使用"易图"、"易图网"(本站注册商标)名称发布、复制、转售所下载的CAD图库,由此给本站造成损害的,本站将依法追究其相关法律责任。

友情链接 热门模型 免费模型