yituLogo
当前的位置:首页 > 室内CAD图纸 > cad > 餐饮娱乐 > 餐饮空间 > 全套餐饮空间CAD图纸,厨房餐区设计图纸下载

图纸介绍

             空间划分:成套餐饮空间                                                                                  餐饮类型:餐厅

            图纸深度:施工图                                                                                               图纸格式:JPG

           设计风格:现代

资料为:全套餐饮空间CAD图纸

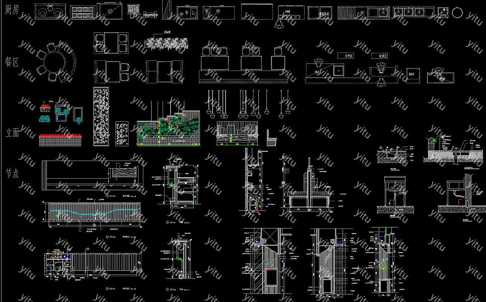
资料内容包括:全套餐饮空间CAD施工图,厨房、餐区、立面,节点图,具有桌椅平面图,背景墙立面图,节点大样图,灯具立面图,绿植立面图等,具有详细的餐饮空间立面图。该图纸制作详细规范,文字标注统一,细节详尽丰富,内容详实,尺寸大小合理,具有很高的参考价值,可以作为参考学习的模板,供设计师、建筑师下载参考。

部分图纸展示:

<a href=https://www.yitu.cn/sketchup/chufang/index.html target=_blank class=infotextkey><a href=https://www.yitu.cn/su/8620.html target=_blank class=infotextkey>厨房</a></a>、餐区、立面,节点图2.jpg

 

厨房、餐区、立面,节点图

 

<a href=https://www.yitu.cn/sketchup/chufang/index.html target=_blank class=infotextkey><a href=https://www.yitu.cn/su/8620.html target=_blank class=infotextkey>厨房</a></a>、餐区、立面,节点图3.jpg

 

厨房、餐区、立面,节点图

 

<a href=https://www.yitu.cn/sketchup/chufang/index.html target=_blank class=infotextkey><a href=https://www.yitu.cn/su/8620.html target=_blank class=infotextkey>厨房</a></a>、餐区、立面,节点图5.jpg

 

厨房、餐区、立面,节点图

 

<a href=https://www.yitu.cn/sketchup/chufang/index.html target=_blank class=infotextkey><a href=https://www.yitu.cn/su/8620.html target=_blank class=infotextkey>厨房</a></a>、餐区、立面,节点图6.jpg

 

厨房、餐区、立面,节点图

 

<a href=https://www.yitu.cn/sketchup/chufang/index.html target=_blank class=infotextkey><a href=https://www.yitu.cn/su/8620.html target=_blank class=infotextkey>厨房</a></a>、餐区、立面,节点图7.jpg

 

厨房、餐区、立面,节点图

全套餐饮空间CAD图纸,厨房餐区设计图纸下载

ID:90591
软     件:sketchup 大     小:8.80MB 上 传 时 间:20200915 消 耗 积 分:30
  • 收藏 ()
  • 评论 ()
  • ⚠图纸报错

qianqian 普通会员

关注
  • 户外垃圾桶
  • 户外垃圾桶
  • 户外垃圾桶
图纸使用权利说明:

会员在本站下载的原创CAD图库后,只拥有CAD图库的使用权,著作权归原作者及易图网所有。未经合法授权,会员不得以任何形式发布、传播、复制、转售该CAD图库。特别地,不得擅自以易图网名义或使用"易图"、"易图网"(本站注册商标)名称发布、复制、转售所下载的CAD图库,由此给本站造成损害的,本站将依法追究其相关法律责任。

友情链接 热门模型 免费模型