yituLogo
当前的位置:首页 > 室内CAD图纸 > cad > 餐饮娱乐 > 餐饮空间 > 二层某咖啡厅装修图,咖啡厅CAD设计图施工图纸下载

图纸介绍

                                    空间划分:成套餐饮空间                                                         图纸深度 :施工图

                                   餐饮类型:咖啡厅                                                                     图纸格式:JPG

                                  设计风格:现代

资料为:二层某咖啡厅装修图

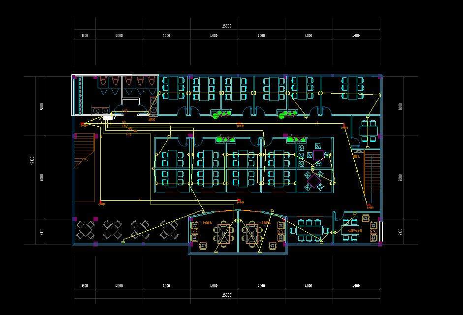
资料内容包括:全套施工图,二层插座图、二层平面配置图、二层照明图、立面图、平面配置图、一层插座图、一层顶面配置图、一层平面配置图、一层照明图等,空间设置合理规范,具有较高的参考价值,可作为参考学习的模板,供设计师、建筑师下载参考。

部分图纸展示如:

立面图.jpg

 

立面图

 

<a href=https://www.yitu.cn/su/7392.html target=_blank class=infotextkey>平面</a>配置图.jpg

 

平面配置图

 

一层<a href=https://www.yitu.cn/su/7656.html target=_blank class=infotextkey>插座</a>图.jpg

 

一层插座

 

一层顶面配置图.jpg

 

一层顶面配置图

 

一层<a href=https://www.yitu.cn/su/7392.html target=_blank class=infotextkey>平面</a>配置图.jpg

 

一层平面配置图

 

一层照明图.jpg

 

一层照明图

二层某咖啡厅装修图,咖啡厅CAD设计图施工图纸下载

ID:91265
软     件:sketchup 大     小:2.10MB 上 传 时 间:20211013 消 耗 积 分:10
  • 收藏 ()
  • 评论 ()
  • ⚠图纸报错

qianqian 普通会员

关注
  • 户外垃圾桶
  • 户外垃圾桶
  • 户外垃圾桶
图纸使用权利说明:

会员在本站下载的原创CAD图库后,只拥有CAD图库的使用权,著作权归原作者及易图网所有。未经合法授权,会员不得以任何形式发布、传播、复制、转售该CAD图库。特别地,不得擅自以易图网名义或使用"易图"、"易图网"(本站注册商标)名称发布、复制、转售所下载的CAD图库,由此给本站造成损害的,本站将依法追究其相关法律责任。

友情链接 热门模型 免费模型