yituLogo
当前的位置:首页 > 室内CAD图纸 > cad > 家装图纸 > 家居 > 现代三室两厅130㎡山h一号简单点施工图cad图纸下载

图纸介绍

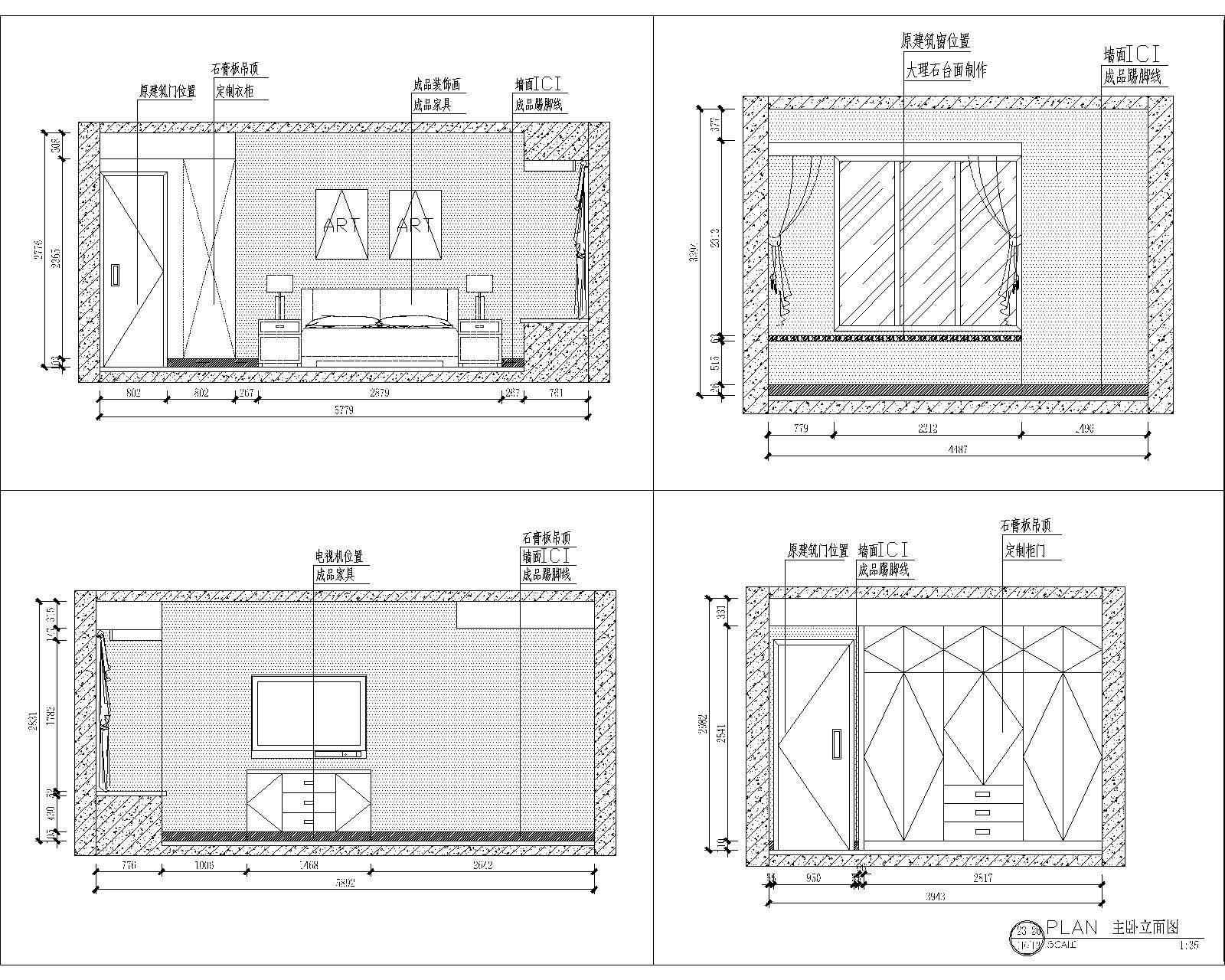
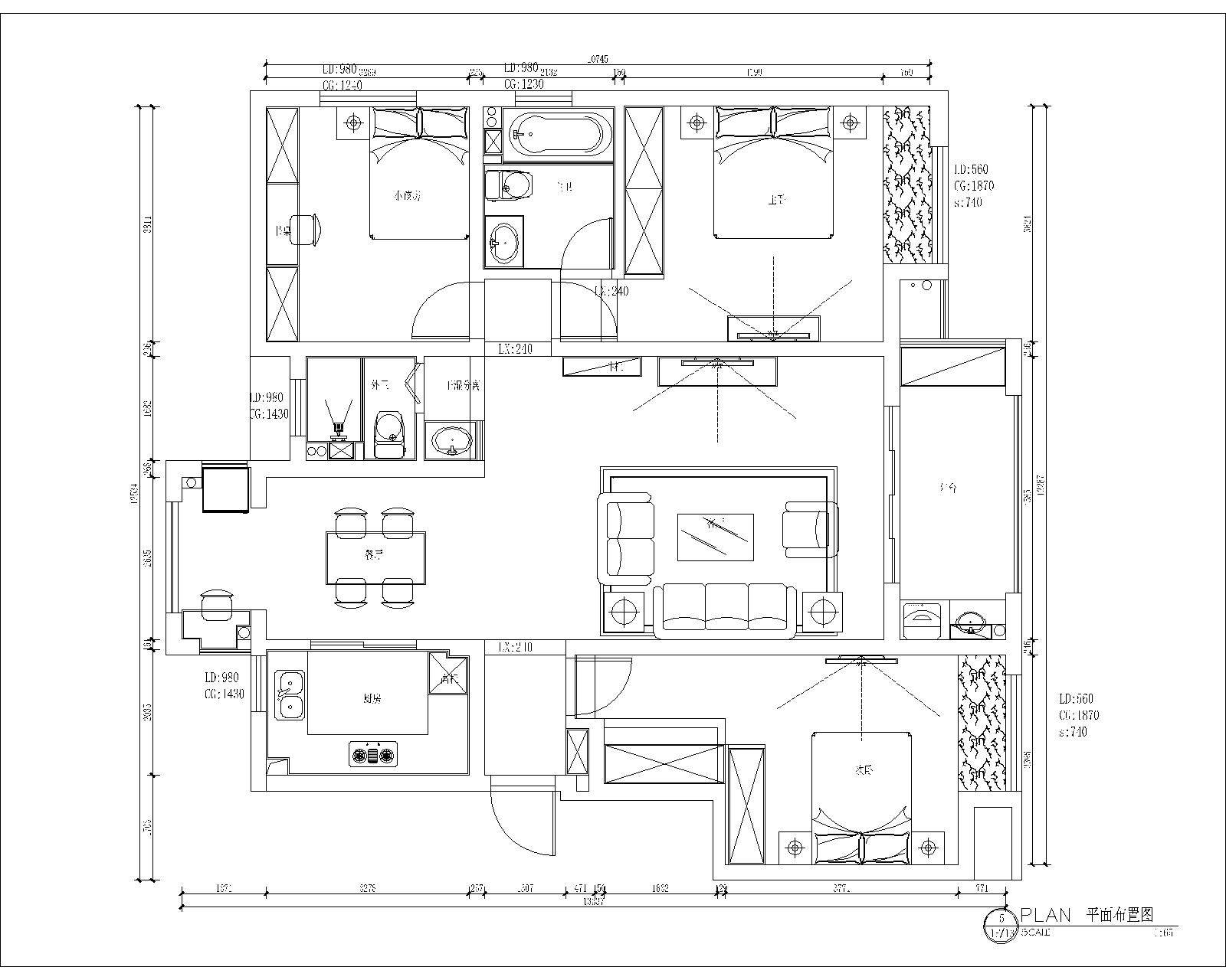
 现代三室两厅130㎡h一号简单点施工图cad图纸卧室布局设计图,餐厅设计图,客厅设计图,梯间设计图各种精准图纸。易图网为您提供下载服务,好看实用。

现代三室两厅130㎡山h一号简单点施工图cad图纸下载

ID:13365
软     件:sketchup 大     小:7.20MB 上 传 时 间:20190718 消 耗 积 分:30
  • 收藏 ()
  • 评论 ()
  • ⚠图纸报错

普通会员

关注
  • 现代衣服展架草图大师模型,衣服展架sketchup模型skp文件分享
  • 现代衣服鞋包鞋柜组合su模型,衣服sketchup模型skp文件分享
  • 现代挂衣架服饰鞋子组合su模型,挂衣架sketchup模型skp文件分享
图纸使用权利说明:

会员在本站下载的原创CAD图库后,只拥有CAD图库的使用权,著作权归原作者及易图网所有。未经合法授权,会员不得以任何形式发布、传播、复制、转售该CAD图库。特别地,不得擅自以易图网名义或使用"易图"、"易图网"(本站注册商标)名称发布、复制、转售所下载的CAD图库,由此给本站造成损害的,本站将依法追究其相关法律责任。

友情链接 热门模型 免费模型