yituLogo
当前的位置:首页 > 室内CAD图纸 > cad > 家装图纸 > 家居 > 珠海丽景湾样板间施工图,样板间家装CAD施工图纸下载

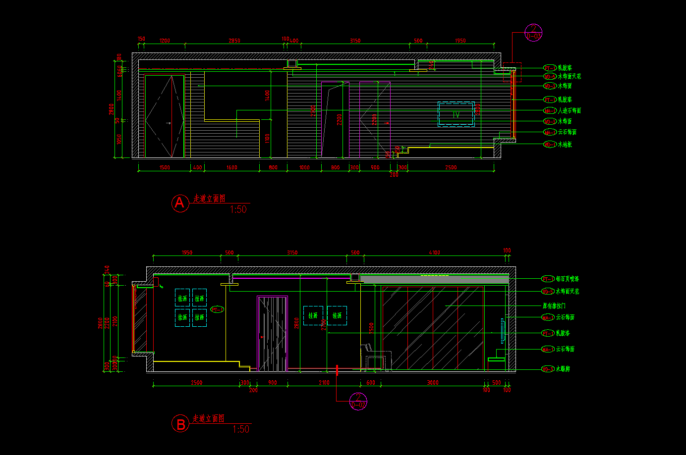
图纸介绍

珠海丽景湾样板间施工图,样板间家装CAD施工图纸下载,资料内容包含:CAD施工图(图纸目录,施工图设计说明、平面图,立面图,节点大样等)材料表,物料表,灯具洁具规格表等。

部分图纸展示:

QQ截图20200102111948.png

 

立面图

 

QQ截图20200102112009.png

 

立面图

 

QQ截图20200102112056.png

 

平面

 

QQ截图20200102112114.png

 

平面

 

QQ截图20200102112132.png

 

平面

珠海丽景湾样板间施工图,样板间家装CAD施工图纸下载

ID:22714
软     件:sketchup 大     小:7.20MB 上 传 时 间:20200102 消 耗 积 分:30
  • 收藏 ()
  • 评论 ()
  • ⚠图纸报错

hufeng 普通会员

关注
  • 现代3D人物草图大师模型,人物SKB文件下载
  • 现代3D人物草图大师模型,人物SKB文件下载
  • 现代3D人物草图大师模型,人物SKB文件下载
图纸使用权利说明:

会员在本站下载的原创CAD图库后,只拥有CAD图库的使用权,著作权归原作者及易图网所有。未经合法授权,会员不得以任何形式发布、传播、复制、转售该CAD图库。特别地,不得擅自以易图网名义或使用"易图"、"易图网"(本站注册商标)名称发布、复制、转售所下载的CAD图库,由此给本站造成损害的,本站将依法追究其相关法律责任。

友情链接 热门模型 免费模型