yituLogo
当前的位置:首页 > 室内CAD图纸 > cad > CAD图库 > 景观 > 景观亭cad施工详图免费下载

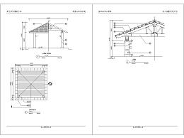
图纸介绍

景观cad施工详图免费下载,内含景观平面图、立面图、剖面图等CAD图纸,制作完整,精致好看,实属施工图纸精品。易图网为您提供下载服务,好看实用。

景观亭cad施工详图免费下载

ID:14454
软     件:sketchup 大     小:0.30MB 上 传 时 间:20190725 消 耗 积 分:30
  • 收藏 ()
  • 评论 ()
  • ⚠图纸报错

yejun 普通会员

关注
  • 现代小鸟木雕草图大师模型,小鸟木雕sketchup模型下载
  • 中式山水画草图大师模型,山水画sketchup模型下载
  • 中式装饰画草图大师模型,装饰画sketchup模型下载
图纸使用权利说明:

会员在本站下载的原创CAD图库后,只拥有CAD图库的使用权,著作权归原作者及易图网所有。未经合法授权,会员不得以任何形式发布、传播、复制、转售该CAD图库。特别地,不得擅自以易图网名义或使用"易图"、"易图网"(本站注册商标)名称发布、复制、转售所下载的CAD图库,由此给本站造成损害的,本站将依法追究其相关法律责任。

友情链接 热门模型 免费模型