yituLogo
当前的位置:首页 > 室内CAD图纸 > cad > 工装图纸 > 酒店宾馆 > 综合体高层酒店建筑施工图纸

图纸介绍

酒店类型:商务酒店                         高度类别:高层建筑

设计风格:现代风格                        结构形式:钢筋混凝土结构

图纸深度:施工图

内容简介:

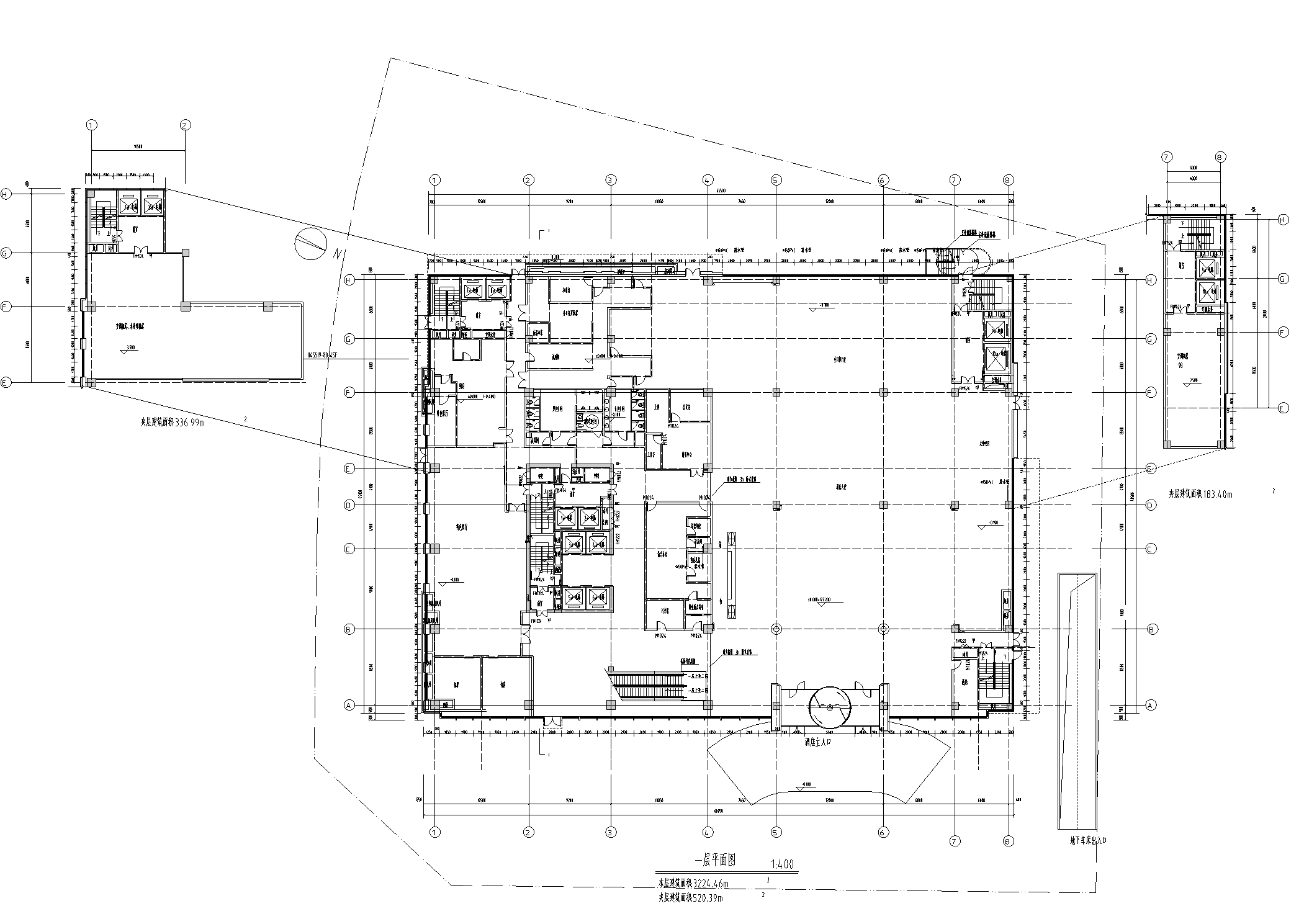
综合体高层酒店建筑施工图纸目录:该酒店项目位于北滨路滨区,与步行街、购物中心、商铺共同组成大型城市商业综合体,在保留域文化特色的基础上,体现五星级酒店的尊贵、现代感。图纸内含有立面图、平面图、剖面图等。

部分图纸内容展示如下:

 

立面图

 

立面图

 

立面图2

 

立面图2

 

一层<a href=https://www.yitu.cn/su/7392.html target=_blank class=infotextkey>平面</a>图

 

一层平面

 

三层<a href=https://www.yitu.cn/su/7392.html target=_blank class=infotextkey>平面</a>图

 

三层平面

 

五层<a href=https://www.yitu.cn/su/7392.html target=_blank class=infotextkey>平面</a>图

 

五层平面

 

八-十七层<a href=https://www.yitu.cn/su/7392.html target=_blank class=infotextkey>平面</a>图

 

八-十七层平面

 

剖面图

 

剖面图

 

<a href=https://www.yitu.cn/su/7618.html target=_blank class=infotextkey>雨棚</a>大样

 

雨棚大样

综合体高层酒店建筑施工图纸

ID:15989
软     件:sketchup 大     小:42.20MB 上 传 时 间:20191024 消 耗 积 分:30
  • 收藏 ()
  • 评论 ()
  • ⚠图纸报错

qianqian 普通会员

关注
  • 户外垃圾桶
  • 户外垃圾桶
  • 户外垃圾桶
图纸使用权利说明:

会员在本站下载的原创CAD图库后,只拥有CAD图库的使用权,著作权归原作者及易图网所有。未经合法授权,会员不得以任何形式发布、传播、复制、转售该CAD图库。特别地,不得擅自以易图网名义或使用"易图"、"易图网"(本站注册商标)名称发布、复制、转售所下载的CAD图库,由此给本站造成损害的,本站将依法追究其相关法律责任。

友情链接 热门模型 免费模型