yituLogo
当前的位置:首页 > 室内CAD图纸 > cad > 工装图纸 > 酒店宾馆 > 酒店建筑CAD施工图,酒店CAD建筑图纸下载

图纸介绍

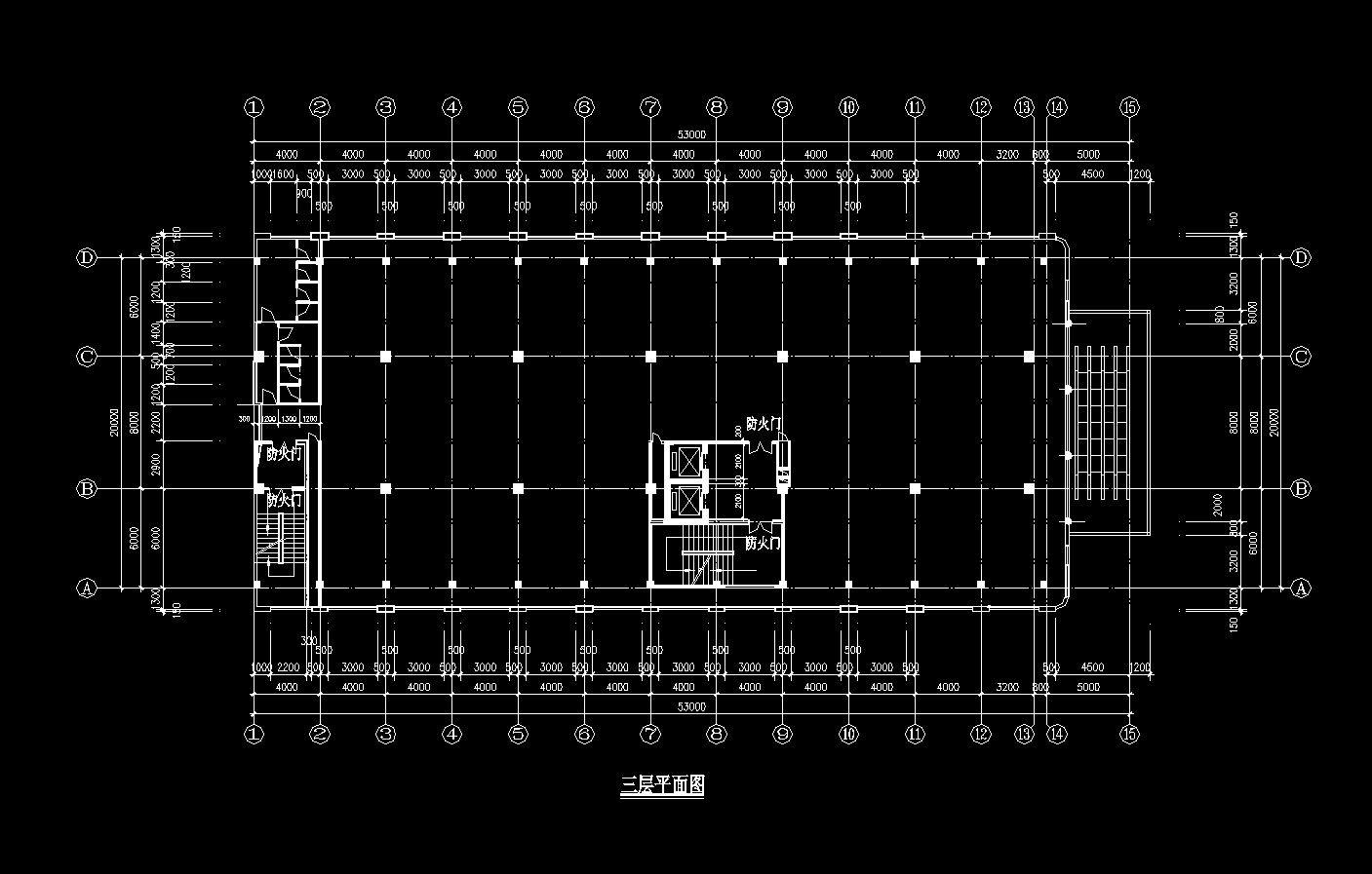
 酒店建筑CAD施工图,酒店CAD建筑图纸下载内容简介:含有立面图、天布置图、总平面布置图、开关布置图、内容详实,具有较高的参考价值。

部分图纸展示:

QQ截图20191209160409.png

 

十层平面

 

QQ截图20191209160423.png

 

二层平面

 

QQ截图20191209160429.png

 

四层平面

 

QQ截图20191209160437.png

 

九层平面

 

QQ截图20191209160444.png

 

天面平面

 

 

酒店建筑CAD施工图,酒店CAD建筑图纸下载

ID:21281
软     件:sketchup 大     小:0.80MB 上 传 时 间:20191209 消 耗 积 分:30
  • 收藏 ()
  • 评论 ()
  • ⚠图纸报错

hufeng 普通会员

关注
  • 现代3D人物草图大师模型,人物SKB文件下载
  • 现代3D人物草图大师模型,人物SKB文件下载
  • 现代3D人物草图大师模型,人物SKB文件下载
图纸使用权利说明:

会员在本站下载的原创CAD图库后,只拥有CAD图库的使用权,著作权归原作者及易图网所有。未经合法授权,会员不得以任何形式发布、传播、复制、转售该CAD图库。特别地,不得擅自以易图网名义或使用"易图"、"易图网"(本站注册商标)名称发布、复制、转售所下载的CAD图库,由此给本站造成损害的,本站将依法追究其相关法律责任。

友情链接 热门模型 免费模型