yituLogo
当前的位置:首页 > 室内CAD图纸 > cad > 公共区间 > 文体医疗 > 医院门诊及住院楼施工图CAD图纸下载dwg文件下载

图纸介绍

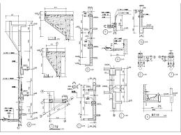
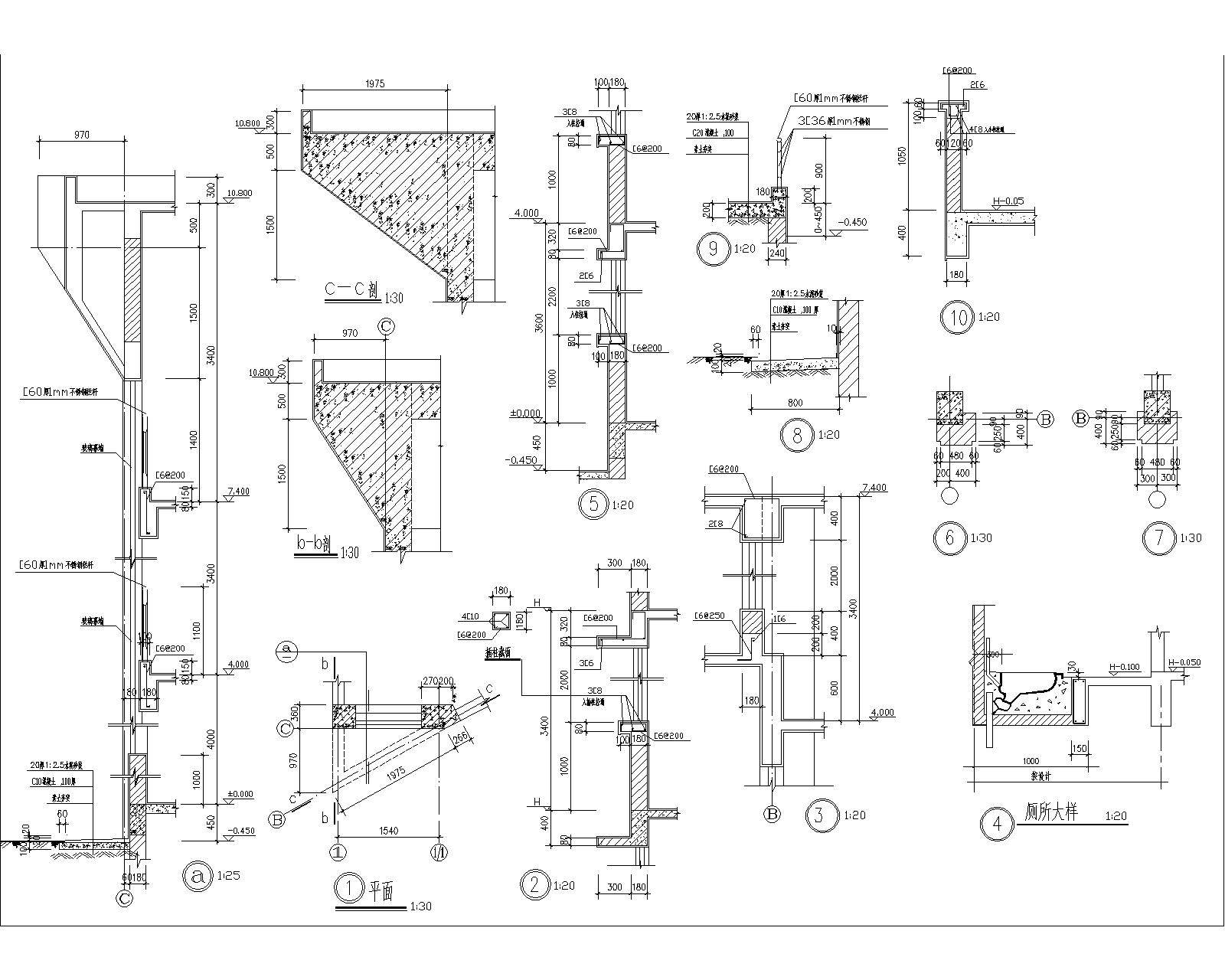
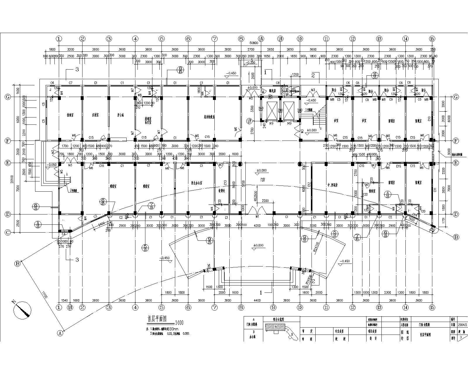
医院门诊及住院施工图CAD图纸下载dwg文件下载,医院门诊及住院CAD施工图纸内含平面施工图、立面图、剖面图以及许多的节点大样图。原创CAD图纸dwg文件分享

医院门诊及住院楼施工图CAD图纸下载dwg文件下载

ID:14751
软     件:sketchup 大     小:1.60MB 上 传 时 间:20190726 消 耗 积 分:30
  • 收藏 ()
  • 评论 ()
  • ⚠图纸报错

白桦树 普通会员

关注
  • 欧式别墅su模型下载、欧式别墅草图大师模型下载
  • 欧式别墅su模型下载、欧式别墅草图大师模型下载
  • 欧式别墅su模型下载、欧式别墅草图大师模型下载
图纸使用权利说明:

会员在本站下载的原创CAD图库后,只拥有CAD图库的使用权,著作权归原作者及易图网所有。未经合法授权,会员不得以任何形式发布、传播、复制、转售该CAD图库。特别地,不得擅自以易图网名义或使用"易图"、"易图网"(本站注册商标)名称发布、复制、转售所下载的CAD图库,由此给本站造成损害的,本站将依法追究其相关法律责任。

友情链接 热门模型 免费模型