yituLogo
当前的位置:首页 > 室内CAD图纸 > cad > 家装图纸 > 样板房 > 上海滩花园一期F3单位样板间CAD施工图纸套图,样板间建筑CAD图纸下载

图纸介绍

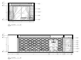
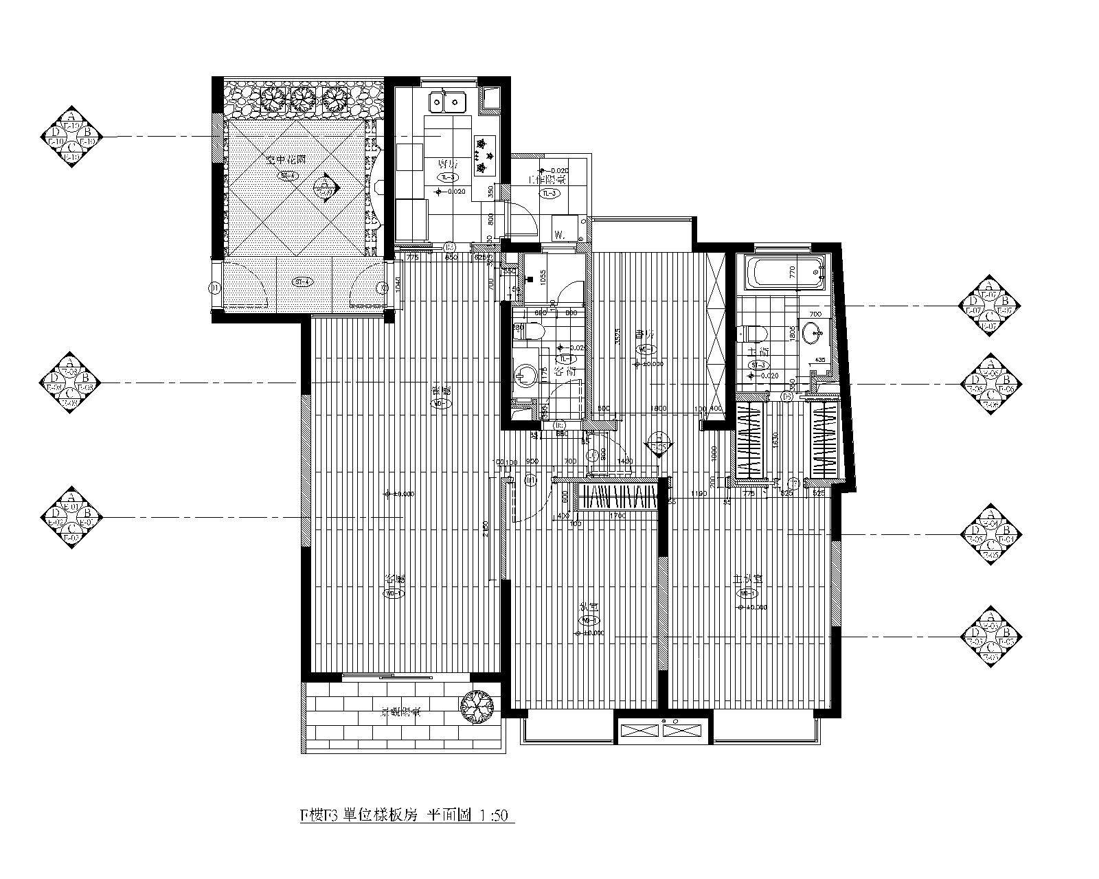
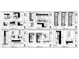
 上海滩园一期F3单位样板间CAD施工图纸套图,超详细的样板间设计图纸包括平面图和立面图还有室内节点大样图设计。易图网为您提供下载服务,好看实用。

 

上海滩花园一期F3单位样板间CAD施工图纸套图,样板间建筑CAD图纸下载

ID:13321
软     件:sketchup 大     小:28.80MB 上 传 时 间:20190718 消 耗 积 分:30
  • 收藏 ()
  • 评论 ()
  • ⚠图纸报错

普通会员

关注
  • 欧式连排别墅草图大师模型,别墅sketchup模型免费下载
  • 欧式连排别墅草图大师模型,别墅sketchup模型免费下载
  • 欧式连排别墅草图大师模型,别墅sketchup模型免费下载
图纸使用权利说明:

会员在本站下载的原创CAD图库后,只拥有CAD图库的使用权,著作权归原作者及易图网所有。未经合法授权,会员不得以任何形式发布、传播、复制、转售该CAD图库。特别地,不得擅自以易图网名义或使用"易图"、"易图网"(本站注册商标)名称发布、复制、转售所下载的CAD图库,由此给本站造成损害的,本站将依法追究其相关法律责任。

友情链接 热门模型 免费模型