yituLogo
当前的位置:首页 > 室内CAD图纸 > cad > 家装图纸 > 样板房 > 户型样板房CAD施工图,CAD建筑图纸免费下载

图纸介绍

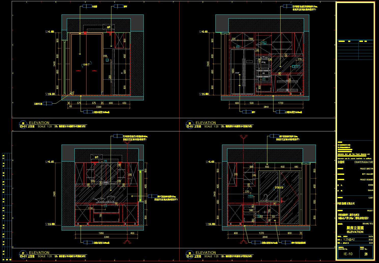
 户型样板房CAD施工图内容简介:超详细的样板房建筑平面图立面图节点大样图及带建筑效果图设计施工图套图一整套施工图可供下载。

 
部分图纸展示:
QQ截图20191115153227.jpg
 
坪大样图
 
QQ截图20191115153245.jpg
 
墙身大样图
 
QQ截图20191115153259.jpg
节点大样图
 

户型样板房CAD施工图,CAD建筑图纸免费下载

ID:19156
软     件:sketchup 大     小:5.00MB 上 传 时 间:20191115 消 耗 积 分:30
  • 收藏 ()
  • 评论 ()
  • ⚠图纸报错

普通会员

关注
  • 欧式连排别墅草图大师模型,别墅sketchup模型免费下载
  • 欧式连排别墅草图大师模型,别墅sketchup模型免费下载
  • 欧式连排别墅草图大师模型,别墅sketchup模型免费下载
图纸使用权利说明:

会员在本站下载的原创CAD图库后,只拥有CAD图库的使用权,著作权归原作者及易图网所有。未经合法授权,会员不得以任何形式发布、传播、复制、转售该CAD图库。特别地,不得擅自以易图网名义或使用"易图"、"易图网"(本站注册商标)名称发布、复制、转售所下载的CAD图库,由此给本站造成损害的,本站将依法追究其相关法律责任。

友情链接 热门模型 免费模型