yituLogo
当前的位置:首页 > 室内CAD图纸 > cad > 家装图纸 > 样板房 > 全套样板间CAD施工图,施工图纸下载

图纸介绍

全套样板间CAD施工图,现代风格的样板房施工图,内含平面布置图,立面图等多种户型施工图,制作完整,详细全面,设计精致,简洁直观。内容详实,可供参考。易图网为您提供下载服务,好看实用。

部分图纸展示:

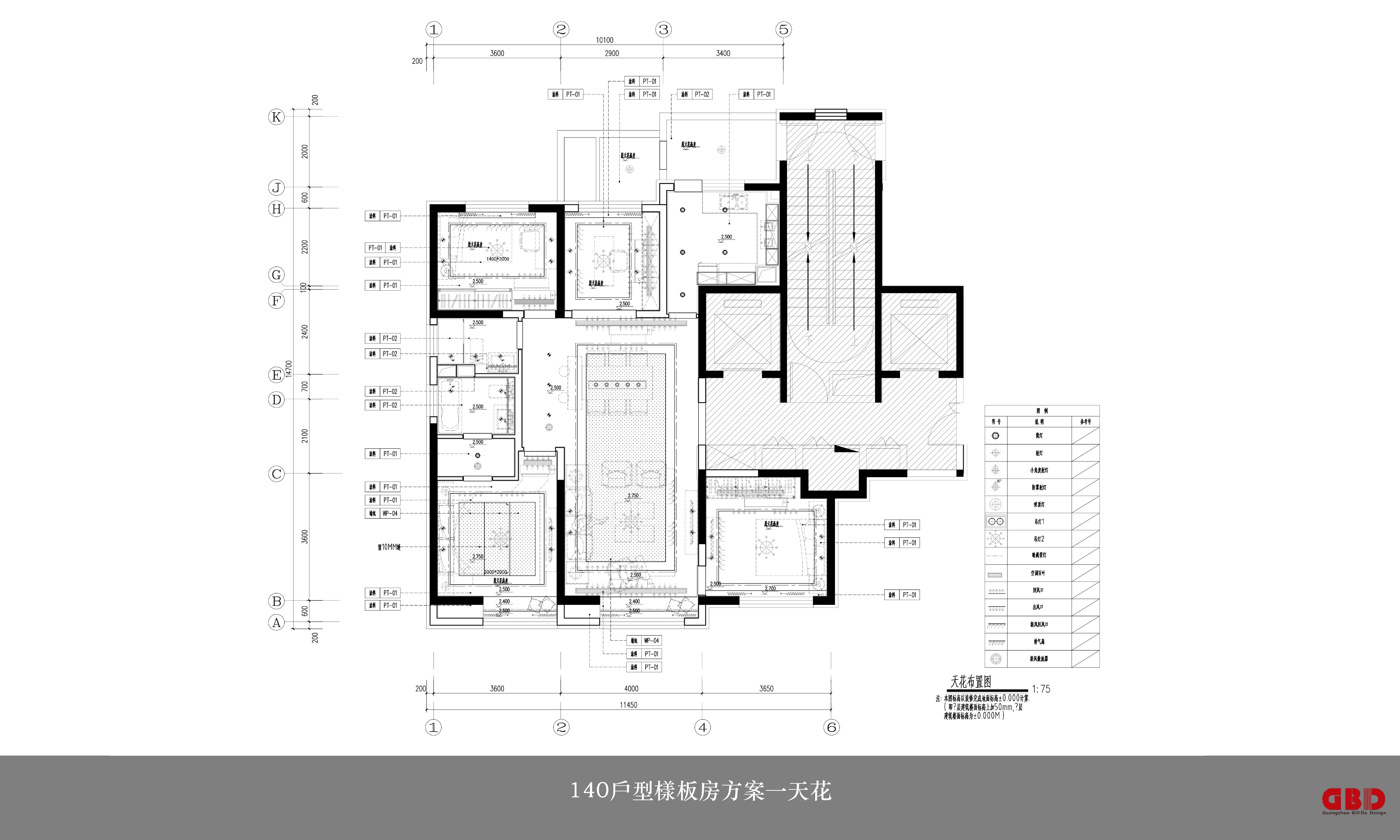
 <a href=https://www.yitu.cn/su/7392.html target=_blank class=infotextkey>平面</a>图.jpg

平面施工图

<a href=https://www.yitu.cn/sketchup/shufang/index.html target=_blank class=infotextkey>书房</a>立面图.jpg

书房立面图

<a href=https://www.yitu.cn/sketchup/chufang/index.html target=_blank class=infotextkey><a href=https://www.yitu.cn/su/8620.html target=_blank class=infotextkey>厨房</a></a>立面图.jpg

厨房立面图

立面图.jpg

立面施工图

墙身大样图.jpg

墙身大样图

全套样板间CAD施工图,施工图纸下载

ID:23005
软     件:sketchup 大     小:582.40MB 上 传 时 间:20200525 消 耗 积 分:30
  • 收藏 ()
  • 评论 ()
  • ⚠图纸报错

zzx 普通会员

关注
  • 现代美容院接待大厅草图大师模型,美容院sketchup模型下载
  • 现代轻奢美容SPA会所草图大师模型,美容院su模型下载
  • 现代手机店草图大师模型,手机店su模型下载
图纸使用权利说明:

会员在本站下载的原创CAD图库后,只拥有CAD图库的使用权,著作权归原作者及易图网所有。未经合法授权,会员不得以任何形式发布、传播、复制、转售该CAD图库。特别地,不得擅自以易图网名义或使用"易图"、"易图网"(本站注册商标)名称发布、复制、转售所下载的CAD图库,由此给本站造成损害的,本站将依法追究其相关法律责任。

友情链接 热门模型 免费模型