yituLogo
当前的位置:首页 > 室内CAD图纸 > cad > 建筑方案设计 > 教育建筑图纸 > [重庆]中学教学楼设计方案文本施工图

图纸介绍

             空间划分:成套建筑空间                                                                                   图纸深度 :施工图

              建筑类型:教学                                                                                              图纸格式:DWG

              设计风格:现代 

资料为:[重庆]中学教学设计方案文本施工图

资料内容包括:全套施工图、拆除图、面布置图、平面布置图、天顶面定位图、天定位图、原始图等。空间设置合理规范,具有较高的参考价值,可作为参考学习的模板,供设计师、建筑师下载参考。

部分图纸展示如下:

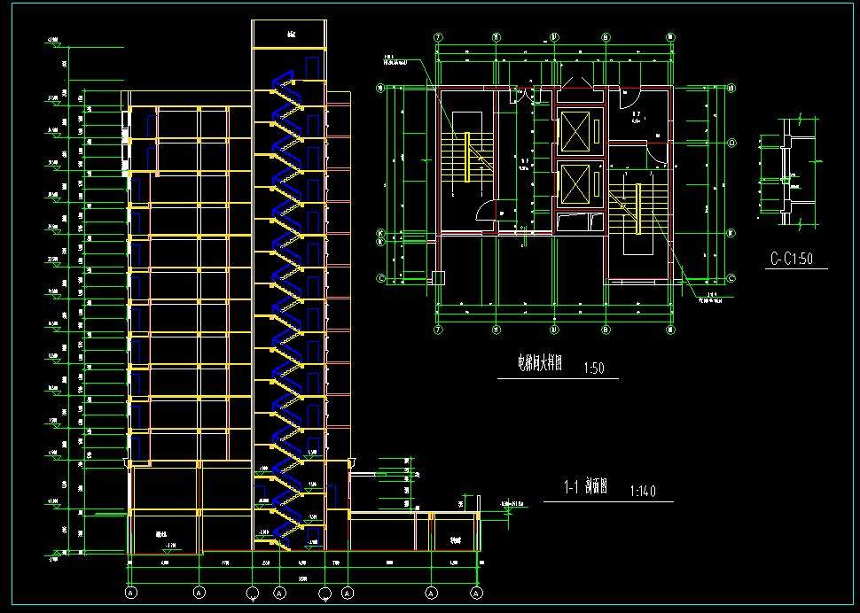
屋顶层<a href=https://www.yitu.cn/su/7392.html target=_blank class=infotextkey>平面</a>图.jpg

 

屋顶层平面

 

剖面图.jpg

 

剖面图

 

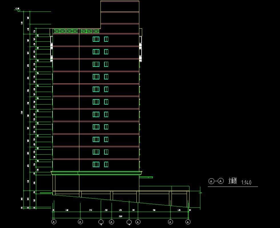
立面图2.jpg

 

立面图

 

立面图.jpg

 

立面图

 

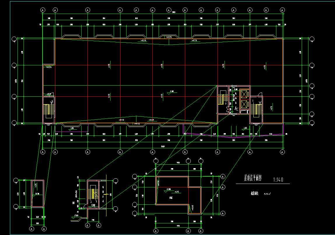
2-7层<a href=https://www.yitu.cn/su/7392.html target=_blank class=infotextkey>平面</a>图.jpg

 

2-7层平面

[重庆]中学教学楼设计方案文本施工图

ID:94024
软     件:sketchup 大     小:1.10MB 上 传 时 间:20220720 消 耗 积 分:20
  • 收藏 ()
  • 评论 ()
  • ⚠图纸报错

qianqian 普通会员

关注
  • 户外垃圾桶
  • 户外垃圾桶
  • 户外垃圾桶
图纸使用权利说明:

会员在本站下载的原创CAD图库后,只拥有CAD图库的使用权,著作权归原作者及易图网所有。未经合法授权,会员不得以任何形式发布、传播、复制、转售该CAD图库。特别地,不得擅自以易图网名义或使用"易图"、"易图网"(本站注册商标)名称发布、复制、转售所下载的CAD图库,由此给本站造成损害的,本站将依法追究其相关法律责任。

友情链接 热门模型 免费模型