yituLogo
当前的位置:首页 > 室内CAD图纸 > cad > 机电设备 > 建筑给排水施工图 > 办公楼建筑给排水竣工图

图纸介绍

           空间划分:成套机电设备                                                                                     图纸深度 :施工图

           类型:建筑给排                                                                                                  图纸格式:DWG

资料为:办公建筑给排竣工图

资料内容包括:全套施工图、一层排平面图、一层排平面图、三层排平面图、给排管道系统图、二层排平面图、等。空间设置合理规范,具有较高的参考价值,可作为参考学习的模板,供设计师、师下载参考。

部分图纸展示如下:

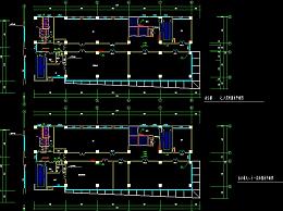
二层排<a href=https://www.yitu.cn/su/5628.html target=_blank class=infotextkey><a href=https://yitu.cn/su/5628.html target=_blank class=infotextkey>水</a></a><a href=https://www.yitu.cn/su/7392.html target=_blank class=infotextkey>平面</a>图.jpg

 

二层排平面

 

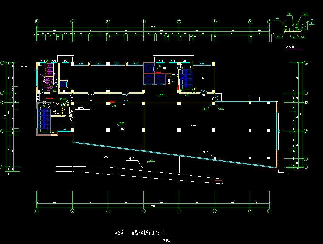
给排<a href=https://www.yitu.cn/su/5628.html target=_blank class=infotextkey><a href=https://yitu.cn/su/5628.html target=_blank class=infotextkey>水</a></a><a href=https://www.yitu.cn/su/7896.html target=_blank class=infotextkey>管道</a>系统图.jpg

 

给排管道系统图

 

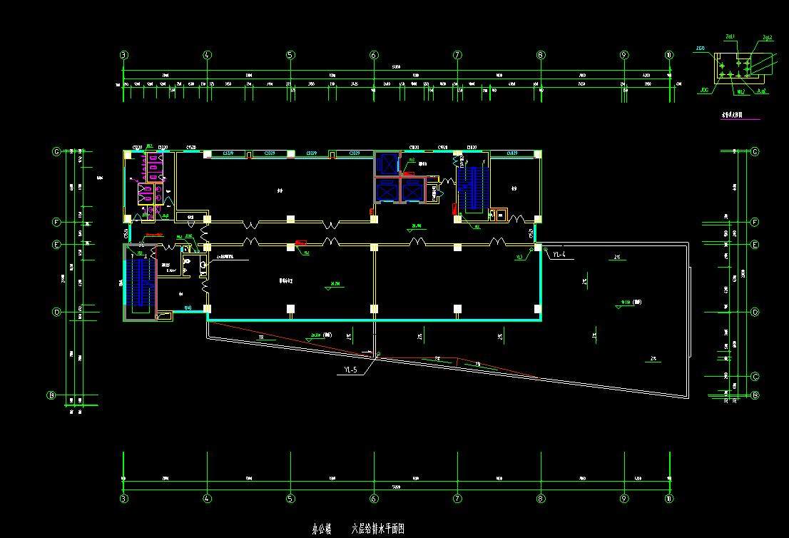
三层排<a href=https://www.yitu.cn/su/5628.html target=_blank class=infotextkey><a href=https://yitu.cn/su/5628.html target=_blank class=infotextkey>水</a></a><a href=https://www.yitu.cn/su/7392.html target=_blank class=infotextkey>平面</a>图.jpg

 

三层排平面

 

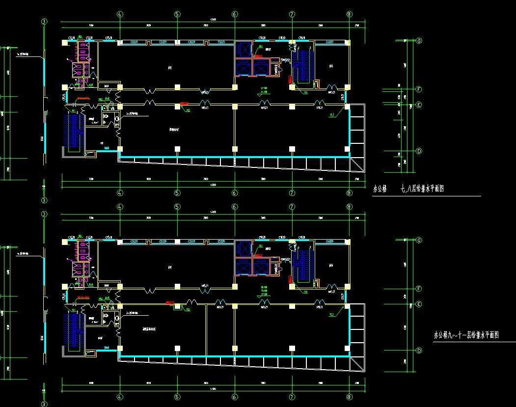
一层排<a href=https://www.yitu.cn/su/5628.html target=_blank class=infotextkey><a href=https://yitu.cn/su/5628.html target=_blank class=infotextkey>水</a></a><a href=https://www.yitu.cn/su/7392.html target=_blank class=infotextkey>平面</a>图.jpg

 

一层排平面

 

一层排<a href=https://www.yitu.cn/su/5628.html target=_blank class=infotextkey><a href=https://yitu.cn/su/5628.html target=_blank class=infotextkey>水</a></a><a href=https://www.yitu.cn/su/7392.html target=_blank class=infotextkey>平面</a>图1.jpg

 

一层排平面

办公楼建筑给排水竣工图

ID:94151
软     件:sketchup 大     小:2.00MB 上 传 时 间:20220723 消 耗 积 分:10
  • 收藏 ()
  • 评论 ()
  • ⚠图纸报错

qianqian 普通会员

关注
  • 户外垃圾桶
  • 户外垃圾桶
  • 户外垃圾桶
图纸使用权利说明:

会员在本站下载的原创CAD图库后,只拥有CAD图库的使用权,著作权归原作者及易图网所有。未经合法授权,会员不得以任何形式发布、传播、复制、转售该CAD图库。特别地,不得擅自以易图网名义或使用"易图"、"易图网"(本站注册商标)名称发布、复制、转售所下载的CAD图库,由此给本站造成损害的,本站将依法追究其相关法律责任。

友情链接 热门模型 免费模型