yituLogo
当前的位置:首页 > 室内CAD图纸 > cad > 机电设备 > 建筑给排水施工图 > 飞灰固化物填埋场工程生产综合楼给排水施工图

图纸介绍

           空间划分:成套机电设备                                                                                    图纸深度 :施工图

           类型:建筑给排                                                                                               图纸格式:DWG

资料为:飞灰固化物填埋场工程生产综合给排施工图

资料内容包括:全套施工图、二层平面图、卫生间大样图、一层建筑给排平面图、一层平面图、雨、污、废、给系统原理图。空间设置合理规范,具有较高的参考价值,可作为参考学习的模板,供设计师、师下载参考。

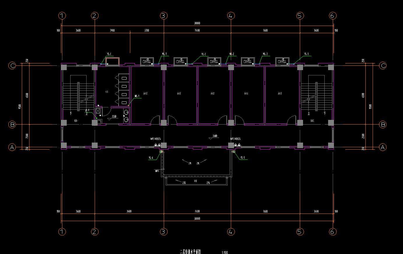
部分图纸展示如下:

二层给排<a href=https://www.yitu.cn/su/5628.html target=_blank class=infotextkey><a href=https://yitu.cn/su/5628.html target=_blank class=infotextkey>水</a></a><a href=https://www.yitu.cn/su/7392.html target=_blank class=infotextkey>平面</a>图.jpg

 

二层给排平面

 

给谁排<a href=https://www.yitu.cn/su/5628.html target=_blank class=infotextkey><a href=https://yitu.cn/su/5628.html target=_blank class=infotextkey>水</a></a><a href=https://www.yitu.cn/su/7590.html target=_blank class=infotextkey>设计</a>总说明图.jpg

 

给谁排设计总说明图

 

三层给排<a href=https://www.yitu.cn/su/5628.html target=_blank class=infotextkey><a href=https://yitu.cn/su/5628.html target=_blank class=infotextkey>水</a></a><a href=https://www.yitu.cn/su/7392.html target=_blank class=infotextkey>平面</a>图.jpg

 

三层给排平面

 

屋顶给排<a href=https://www.yitu.cn/su/5628.html target=_blank class=infotextkey><a href=https://yitu.cn/su/5628.html target=_blank class=infotextkey>水</a></a><a href=https://www.yitu.cn/su/7392.html target=_blank class=infotextkey>平面</a>图.jpg

 

屋顶给排平面

 

无障碍<a href=https://www.yitu.cn/su/7756.html target=_blank class=infotextkey>卫生间</a>大样图.jpg /></p>
<p style= 

无障碍卫生间大样图

 

一层给排<a href=https://www.yitu.cn/su/5628.html target=_blank class=infotextkey><a href=https://yitu.cn/su/5628.html target=_blank class=infotextkey>水</a></a><a href=https://www.yitu.cn/su/7392.html target=_blank class=infotextkey>平面</a>图.jpg

 

一层给排平面

飞灰固化物填埋场工程生产综合楼给排水施工图

ID:94185
软     件:sketchup 大     小:0.40MB 上 传 时 间:20220725 消 耗 积 分:10
  • 收藏 ()
  • 评论 ()
  • ⚠图纸报错

qianqian 普通会员

关注
  • 户外垃圾桶
  • 户外垃圾桶
  • 户外垃圾桶
图纸使用权利说明:

会员在本站下载的原创CAD图库后,只拥有CAD图库的使用权,著作权归原作者及易图网所有。未经合法授权,会员不得以任何形式发布、传播、复制、转售该CAD图库。特别地,不得擅自以易图网名义或使用"易图"、"易图网"(本站注册商标)名称发布、复制、转售所下载的CAD图库,由此给本站造成损害的,本站将依法追究其相关法律责任。

友情链接 热门模型 免费模型