yituLogo
当前的位置:首页 > 室内CAD图纸 > cad > 机电设备 > 建筑给排水施工图 > [河北]小区住宅楼群给排水消防施工图CAD图纸

图纸介绍

             空间划分:成套机电设备                                                                                    图纸深度 :施工图

             类型:建筑给排                                                                                               图纸格式:DWG

资料为:小区住宅群给排消防施工图

资料内容包括:全套施工图、单元标准层给排大样图、下室给排平面图、给排立面图、给排系统图、一层排大样图等。空间设置合理规范,具有较高的参考价值,可作为参考学习的模板,供设计师、师下载参考。

部分图纸展示如下:

<a href=https://www.yitu.cn/su/7872.html target=_blank class=infotextkey>地</a>下室给排<a href=https://www.yitu.cn/su/5628.html target=_blank class=infotextkey><a href=https://yitu.cn/su/5628.html target=_blank class=infotextkey>水</a></a><a href=https://www.yitu.cn/su/7392.html target=_blank class=infotextkey>平面</a>图.jpg

 

下室给排平面

 

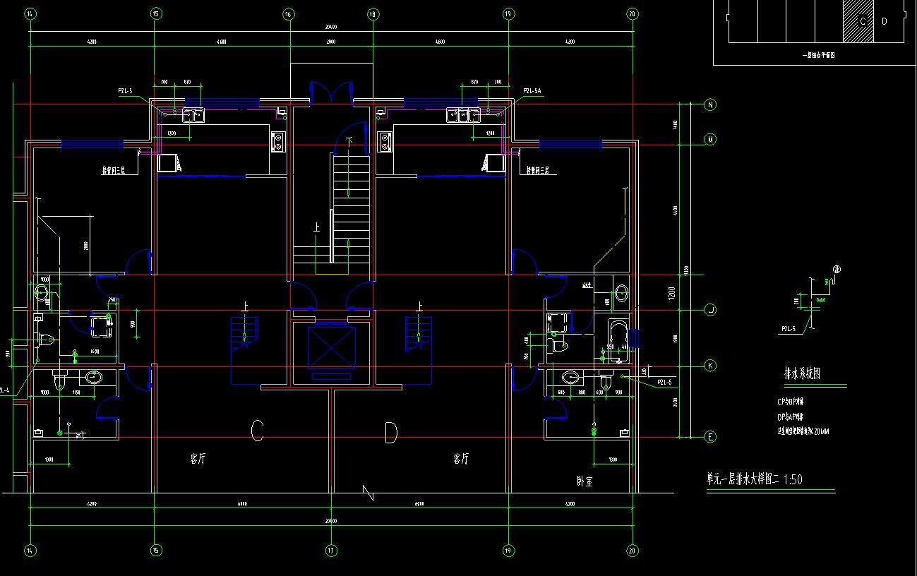
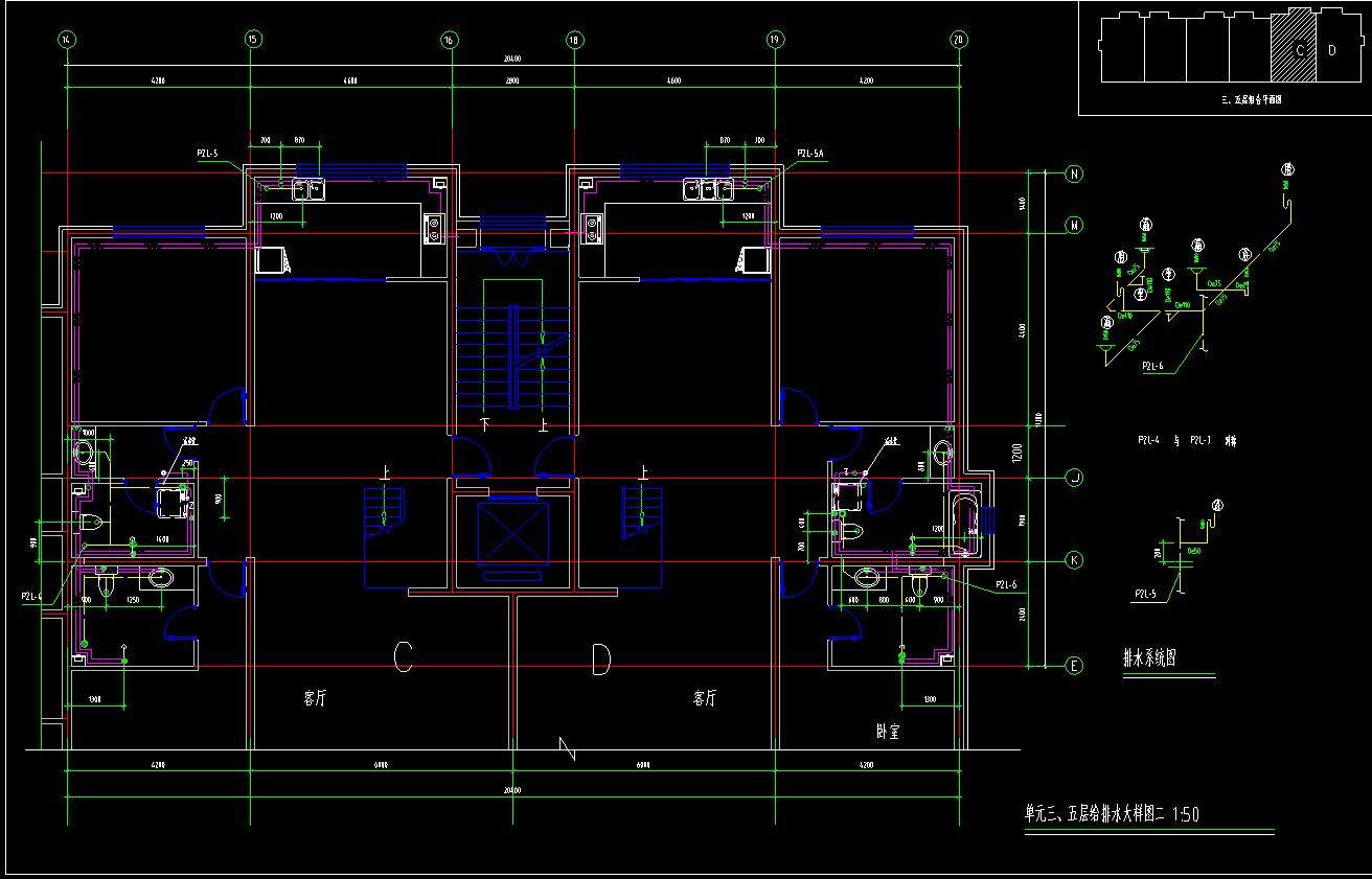
给排<a href=https://www.yitu.cn/su/5628.html target=_blank class=infotextkey><a href=https://yitu.cn/su/5628.html target=_blank class=infotextkey>水</a></a>系统图.jpg

 

给排系统图

 

给排<a href=https://www.yitu.cn/su/5628.html target=_blank class=infotextkey><a href=https://yitu.cn/su/5628.html target=_blank class=infotextkey>水</a></a>立面图.jpg

 

给排立面图

 

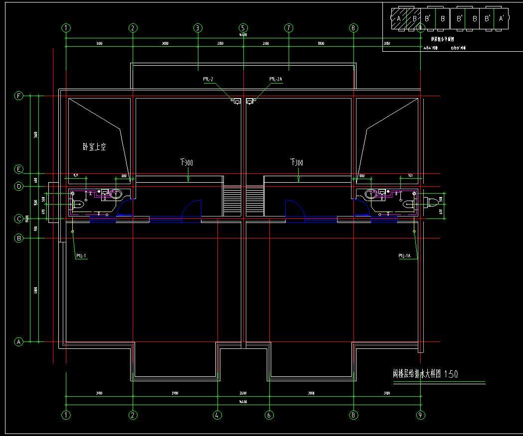
单元标准层给排<a href=https://www.yitu.cn/su/5628.html target=_blank class=infotextkey><a href=https://yitu.cn/su/5628.html target=_blank class=infotextkey>水</a></a>大样图.jpg

 

单元标准层给排大样图

 

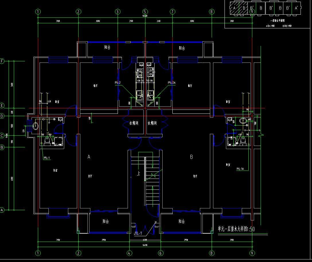
一层排<a href=https://www.yitu.cn/su/5628.html target=_blank class=infotextkey><a href=https://yitu.cn/su/5628.html target=_blank class=infotextkey>水</a></a>大样图.jpg

 

一层排大样图

[河北]小区住宅楼群给排水消防施工图CAD图纸

ID:94258
软     件:sketchup 大     小:2.30MB 上 传 时 间:20220726 消 耗 积 分:10
  • 收藏 ()
  • 评论 ()
  • ⚠图纸报错

qianqian 普通会员

关注
  • 户外垃圾桶
  • 户外垃圾桶
  • 户外垃圾桶
图纸使用权利说明:

会员在本站下载的原创CAD图库后,只拥有CAD图库的使用权,著作权归原作者及易图网所有。未经合法授权,会员不得以任何形式发布、传播、复制、转售该CAD图库。特别地,不得擅自以易图网名义或使用"易图"、"易图网"(本站注册商标)名称发布、复制、转售所下载的CAD图库,由此给本站造成损害的,本站将依法追究其相关法律责任。

友情链接 热门模型 免费模型