SUQQ群
QQ扫一扫
图纸深度:施工图 项目位置:浙江
设计时间:2015年 建筑面积:10950㎡
楼层数:5层
内容简介:
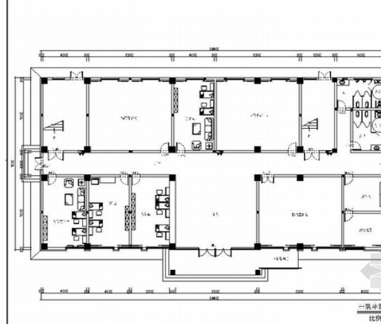
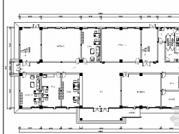
[浙江]超完整现代风格消防站室内装修设计施工图。加强景观细部建设和基础设施建设,对弱电机房、物证保留室、信访室、大队机动用房、卫生间、参谋办公室、党委会议室、文秘办公室、宣传部办公室、大接待室、走廊、档案储存室等进行设计完善。
![[浙江]超完整现代风格消防站室<a href=https://www.yitu.cn/su/7634.html target=_blank class=infotextkey>内装</a>修<a href=https://www.yitu.cn/su/7590.html target=_blank class=infotextkey>设计</a>施工图](https://pic.yitu.cn/d/file/3c591ad3f5cb938bc0703ce461822f75.png?x-oss-process=style/w1200)
设计效果图
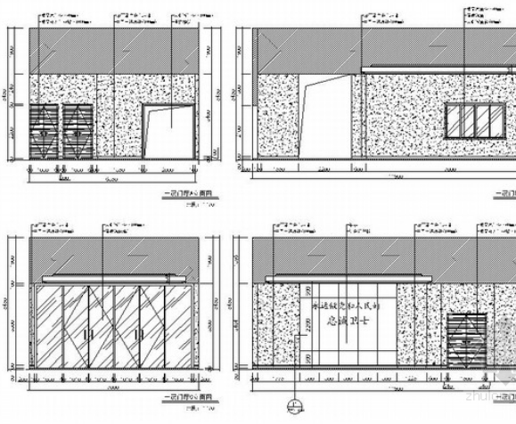
![[浙江]超完整现代风格消防站室<a href=https://www.yitu.cn/su/7634.html target=_blank class=infotextkey>内装</a>修<a href=https://www.yitu.cn/su/7590.html target=_blank class=infotextkey>设计</a>施工图门厅立面图](https://pic.yitu.cn/d/file/9801973b60848b39752aa1e2207f6bc5.png?x-oss-process=style/w1200)
![[浙江]超完整现代风格消防站室<a href=https://www.yitu.cn/su/7634.html target=_blank class=infotextkey>内装</a>修<a href=https://www.yitu.cn/su/7590.html target=_blank class=infotextkey>设计</a>施工图党委会议<a href=https://www.yitu.cn/sketchup/bangongshi/index.html target=_blank class=infotextkey>办公室</a>立面图](https://pic.yitu.cn/d/file/fb5914858085ae1887f0e3eb304d3f72.png?x-oss-process=style/w1200)
[浙江]超完整现代风格消防站室内装修设计施工图党委会议办公室立面图
![[浙江]超完整现代风格消防站室<a href=https://www.yitu.cn/su/7634.html target=_blank class=infotextkey>内装</a>修<a href=https://www.yitu.cn/su/7590.html target=_blank class=infotextkey>设计</a>施工图档案储藏室立面图](https://pic.yitu.cn/d/file/38e9af82446ae740136eb6d887601e47.png?x-oss-process=style/w1200)
[浙江]超完整现代风格消防站室内装修设计施工图档案储藏室立面图
![[浙江]超完整现代风格消防站室<a href=https://www.yitu.cn/su/7634.html target=_blank class=infotextkey>内装</a>修<a href=https://www.yitu.cn/su/7590.html target=_blank class=infotextkey>设计</a>施工图奢华消防培训大教室立面图](https://pic.yitu.cn/d/file/36c5dbce45a15bcf58a62a812a431f71.png?x-oss-process=style/w1200)
[浙江]超完整现代风格消防站室内装修设计施工图奢华消防培训大教室立面图
![[浙江]超完整现代风格消防站室<a href=https://www.yitu.cn/su/7634.html target=_blank class=infotextkey>内装</a>修<a href=https://www.yitu.cn/su/7590.html target=_blank class=infotextkey>设计</a>施工图<a href=https://www.yitu.cn/sketchup/louti/index.html target=_blank class=infotextkey><a href=https://www.yitu.cn/su/6782.html target=_blank class=infotextkey><a href=https://www.yitu.cn/su/8159.html target=_blank class=infotextkey>楼</a>梯</a></a>间立面图](https://pic.yitu.cn/d/file/7daa02b9fa43a9bce709a7f8c939a7e1.png?x-oss-process=style/w1200)
![[浙江]超完整现代风格消防站室<a href=https://www.yitu.cn/su/7634.html target=_blank class=infotextkey>内装</a>修<a href=https://www.yitu.cn/su/7590.html target=_blank class=infotextkey>设计</a>施工图<a href=https://www.yitu.cn/su/7426.html target=_blank class=infotextkey>消防车</a>库立面图](https://pic.yitu.cn/d/file/19432d13ac710a4c75d0f494361cb1e5.png?x-oss-process=style/w1200)
[浙江]超完整现代风格消防站室内装修设计施工图消防车库立面图
![[浙江]超完整现代风格消防站室<a href=https://www.yitu.cn/su/7634.html target=_blank class=infotextkey>内装</a>修<a href=https://www.yitu.cn/su/7590.html target=_blank class=infotextkey>设计</a>施工图荣誉室立面图](https://pic.yitu.cn/d/file/cab72ee80a83cda47f600c9da0d48d08.png?x-oss-process=style/w1200)
![[浙江]超完整现代风格消防站室<a href=https://www.yitu.cn/su/7634.html target=_blank class=infotextkey>内装</a>修<a href=https://www.yitu.cn/su/7590.html target=_blank class=infotextkey>设计</a>施工图<a href=https://www.yitu.cn/su/6890.html target=_blank class=infotextkey>健身房</a>立面图](https://pic.yitu.cn/d/file/4145e968e1d456f2350b4122fcd2e937.png?x-oss-process=style/w1200)
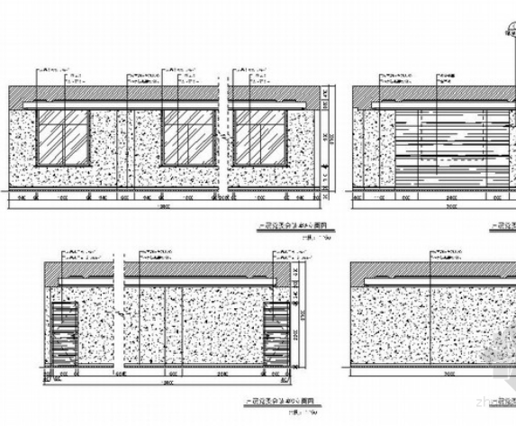
![[浙江]超完整现代风格消防站室<a href=https://www.yitu.cn/su/7634.html target=_blank class=infotextkey>内装</a>修<a href=https://www.yitu.cn/su/7590.html target=_blank class=infotextkey>设计</a>施工图<a href=https://www.yitu.cn/su/7226.html target=_blank class=infotextkey>电视</a>电话<a href=https://www.yitu.cn/sketchup/huiyishi/index.html target=_blank class=infotextkey>会议室</a>立面图](https://pic.yitu.cn/d/file/e931285ee3f8da182fa528bff9409f03.png?x-oss-process=style/w1200)
会员在本站下载的原创CAD图库后,只拥有CAD图库的使用权,著作权归原作者及易图网所有。未经合法授权,会员不得以任何形式发布、传播、复制、转售该CAD图库。特别地,不得擅自以易图网名义或使用"易图"、"易图网"(本站注册商标)名称发布、复制、转售所下载的CAD图库,由此给本站造成损害的,本站将依法追究其相关法律责任。
Copyright 易图网 2006-2025 All Rights Reserved ICP证:蜀ICP备2023015644号-6
四川鑫众焱信息技术服务有限公司| 地址:绵阳市涪城区瀚威城市中心1栋1单元42层2号