yituLogo
当前的位置:首页 > 室内CAD图纸 > cad > 公共区间 > 公共空间 > 某国家级高新技术企业宿舍楼CAD施工图

图纸介绍

空间划分:成套图纸                                    功能类型:其他

图纸深度:施工图                                        图纸格式:JPG,CAD2000

图纸张数:203张                                         设计时间:2012

包含图片:效果图                                        层数:1-2层

内容简介

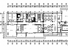
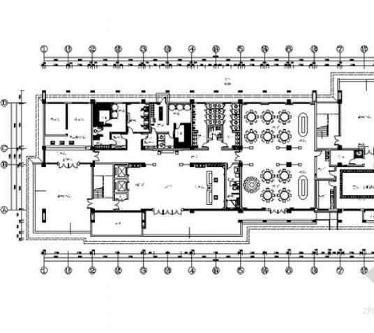
某国家级高新技术企业宿舍CAD施工图(含效果)。采用现代的设计风格,对(平面图、天图、面图、电器点位图、灯控连线图、墙身尺寸图、立面索引图...);3-6层:(平面图、天图、面图);立面图:(单间、标间、套房、梯间、茶吧等进行设计

 

某国家级高新技术企业<a href=https://www.yitu.cn/su/7460.html target=_blank class=infotextkey>宿舍</a><a href=https://www.yitu.cn/su/8159.html target=_blank class=infotextkey>楼</a>CAD施工图(含效果)

 

效果图

 

大堂立面图

 

大堂立面图

 

大样图

 

大样图

 

套间立面图

 

套间立面图

 

<a href=https://www.yitu.cn/sketchup/canting/index.html target=_blank class=infotextkey><a href=https://www.yitu.cn/su/7825.html target=_blank class=infotextkey>餐厅</a></a>立面图

 

餐厅立面图

 

总统套房立面图

 

总统套房立面图

 

<a href=https://www.yitu.cn/su/6890.html target=_blank class=infotextkey>健身房</a>立面图

 

健身房立面图

 

<a href=https://www.yitu.cn/su/6796.html target=_blank class=infotextkey>ktv</a>包间立面图

 

ktv包间立面图

 

单<a href=https://www.yitu.cn/su/8090.html target=_blank class=infotextkey>人</a>间立面图

 

间立面图

 

大样图

 

大样图

某国家级高新技术企业宿舍楼CAD施工图

ID:16639
软     件:sketchup 大     小:32.40MB 上 传 时 间:20191101 消 耗 积 分:30
  • 收藏 ()
  • 评论 ()
  • ⚠图纸报错

strawberry 普通会员

UI社UI社UI社UI社UI社UI社UI社UI社UI社UI社UI社UI社UI社
关注
图纸使用权利说明:

会员在本站下载的原创CAD图库后,只拥有CAD图库的使用权,著作权归原作者及易图网所有。未经合法授权,会员不得以任何形式发布、传播、复制、转售该CAD图库。特别地,不得擅自以易图网名义或使用"易图"、"易图网"(本站注册商标)名称发布、复制、转售所下载的CAD图库,由此给本站造成损害的,本站将依法追究其相关法律责任。

友情链接 热门模型 免费模型