yituLogo
当前的位置:首页 > 室内CAD图纸 > cad > 公共区间 > 公共空间 > 5号楼单身公寓大堂室内装修图

图纸介绍

项目位置:浙江                           图纸格式:CAD2000

图纸深度:施工图                       设计风格:现代风格

图纸张数:18张                          空间划分:大堂

功能类型:其他

内容简介:

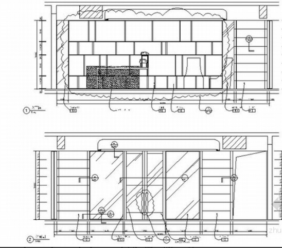
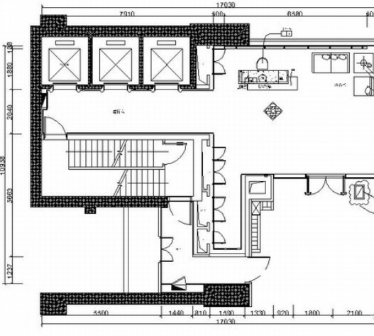
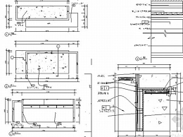
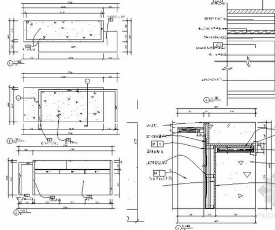
[浙江]5号单身公寓大堂室内装修图。采用现代的设计风格,对图纸目录、施工设计说明、平面图、顶面图、坪图、插座图、灯控图、系统图、大堂立面图、节点(天服务台指示牌)进行初步设计,加强基础设施建设。

 

[浙江]5号<a href=https://www.yitu.cn/su/8159.html target=_blank class=infotextkey>楼</a>单身公寓大堂室<a href=https://www.yitu.cn/su/7634.html target=_blank class=infotextkey>内装</a>修图

 

图1

 

 

图2

 

 

图3

 

 

图4

5号楼单身公寓大堂室内装修图

ID:16689
软     件:sketchup 大     小:0.70MB 上 传 时 间:20191101 消 耗 积 分:30
  • 收藏 ()
  • 评论 ()
  • ⚠图纸报错

strawberry 普通会员

UI社UI社UI社UI社UI社UI社UI社UI社UI社UI社UI社UI社UI社
关注
图纸使用权利说明:

会员在本站下载的原创CAD图库后,只拥有CAD图库的使用权,著作权归原作者及易图网所有。未经合法授权,会员不得以任何形式发布、传播、复制、转售该CAD图库。特别地,不得擅自以易图网名义或使用"易图"、"易图网"(本站注册商标)名称发布、复制、转售所下载的CAD图库,由此给本站造成损害的,本站将依法追究其相关法律责任。

友情链接 热门模型 免费模型