yituLogo
当前的位置:首页 > 室内CAD图纸 > cad > 公共区间 > 公共空间 > 双木亭CAD施工图,双木亭CAD建筑图纸下载

图纸介绍

 双木CAD施工图,双木CAD建筑图纸下载内容简介:里面含有详细的平面图,立面图,剖面图,节点大样图等,图纸制作规范,可供参考。

部分图纸下载:

立面1.jpg

 

立面图

 

立面1.jpg

 

立面图

 

梁架<a href=https://www.yitu.cn/su/7392.html target=_blank class=infotextkey>平面</a>.jpg

 

梁架平面

 

<a href=https://www.yitu.cn/su/7392.html target=_blank class=infotextkey>平面</a>.jpg

 

平面

 

<a href=https://www.yitu.cn/su/7392.html target=_blank class=infotextkey>平面</a>1.jpg

 

平面

 

剖面.jpg

 

剖面图

 

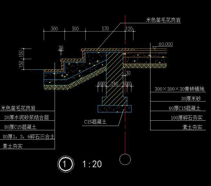
详图.jpg

 

节点详图

 

 

双木亭CAD施工图,双木亭CAD建筑图纸下载

ID:23666
软     件:sketchup 大     小:0.10MB 上 传 时 间:20200531 消 耗 积 分:30
  • 收藏 ()
  • 评论 ()
  • ⚠图纸报错

huangyuzhen 普通会员

关注
  • 现代风格别墅su模型,别墅sketchup模型下载
  • 现代简约别墅草图大师模型,别墅sketchup模型下载
  • 现代简约别墅su模型,别墅sketchup模型下载
图纸使用权利说明:

会员在本站下载的原创CAD图库后,只拥有CAD图库的使用权,著作权归原作者及易图网所有。未经合法授权,会员不得以任何形式发布、传播、复制、转售该CAD图库。特别地,不得擅自以易图网名义或使用"易图"、"易图网"(本站注册商标)名称发布、复制、转售所下载的CAD图库,由此给本站造成损害的,本站将依法追究其相关法律责任。

友情链接 热门模型 免费模型