yituLogo
当前的位置:首页 > 室内CAD图纸 > cad > 公共区间 > 公共空间 > 现代旗舰店CAD施工图,现代旗舰店CAD图纸下载

图纸介绍

 现代旗舰店CAD施工图,现代旗舰店CAD图纸下载内容简介:里面含有详细的平面图,立面图,剖面图,灯位尺寸图,插座布置图等,图纸制作规范,可供参考。

部分图纸如下:

立面1.jpg

 

立面图

 

立面2.jpg

 

立面图

 

立面图.jpg

 

立面图

 

三层<a href=https://www.yitu.cn/su/7392.html target=_blank class=infotextkey>平面</a>布置图.jpg

 

平面布置图

 

天<a href=https://www.yitu.cn/sketchup/huayi/index.html target=_blank class=infotextkey>花</a>图.jpg天<a href=https://www.yitu.cn/sketchup/huayi/index.html target=_blank class=infotextkey>花</a>图.jpg

 

 

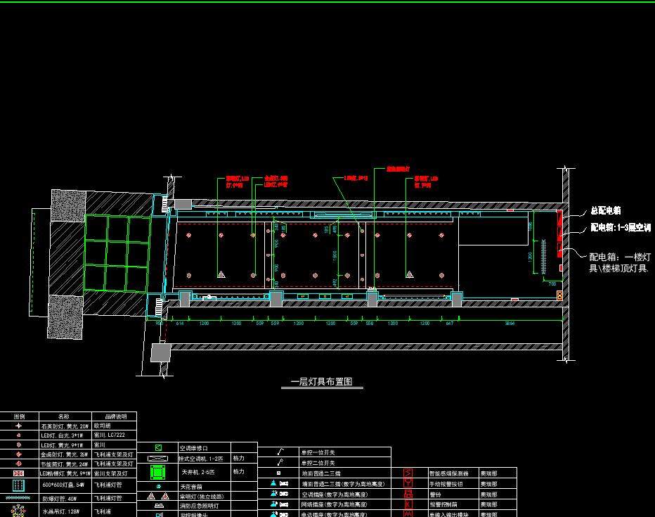
一层<a href=https://www.yitu.cn/su/7392.html target=_blank class=infotextkey>平面</a>布置图.jpg

 

平面布置图

 

 

现代旗舰店CAD施工图,现代旗舰店CAD图纸下载

ID:23946
软     件:sketchup 大     小:11.70MB 上 传 时 间:20200605 消 耗 积 分:30
  • 收藏 ()
  • 评论 ()
  • ⚠图纸报错

huangyuzhen 普通会员

关注
  • 现代风格别墅su模型,别墅sketchup模型下载
  • 现代简约别墅草图大师模型,别墅sketchup模型下载
  • 现代简约别墅su模型,别墅sketchup模型下载
图纸使用权利说明:

会员在本站下载的原创CAD图库后,只拥有CAD图库的使用权,著作权归原作者及易图网所有。未经合法授权,会员不得以任何形式发布、传播、复制、转售该CAD图库。特别地,不得擅自以易图网名义或使用"易图"、"易图网"(本站注册商标)名称发布、复制、转售所下载的CAD图库,由此给本站造成损害的,本站将依法追究其相关法律责任。

友情链接 热门模型 免费模型