yituLogo
当前的位置:首页 > 室内CAD图纸 > cad > 商业空间 > 商业零售 > 现代中式茶会所CAD施工图,免费下载

图纸介绍

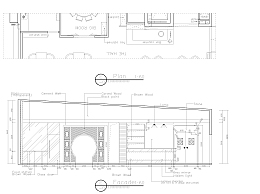
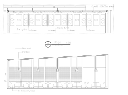
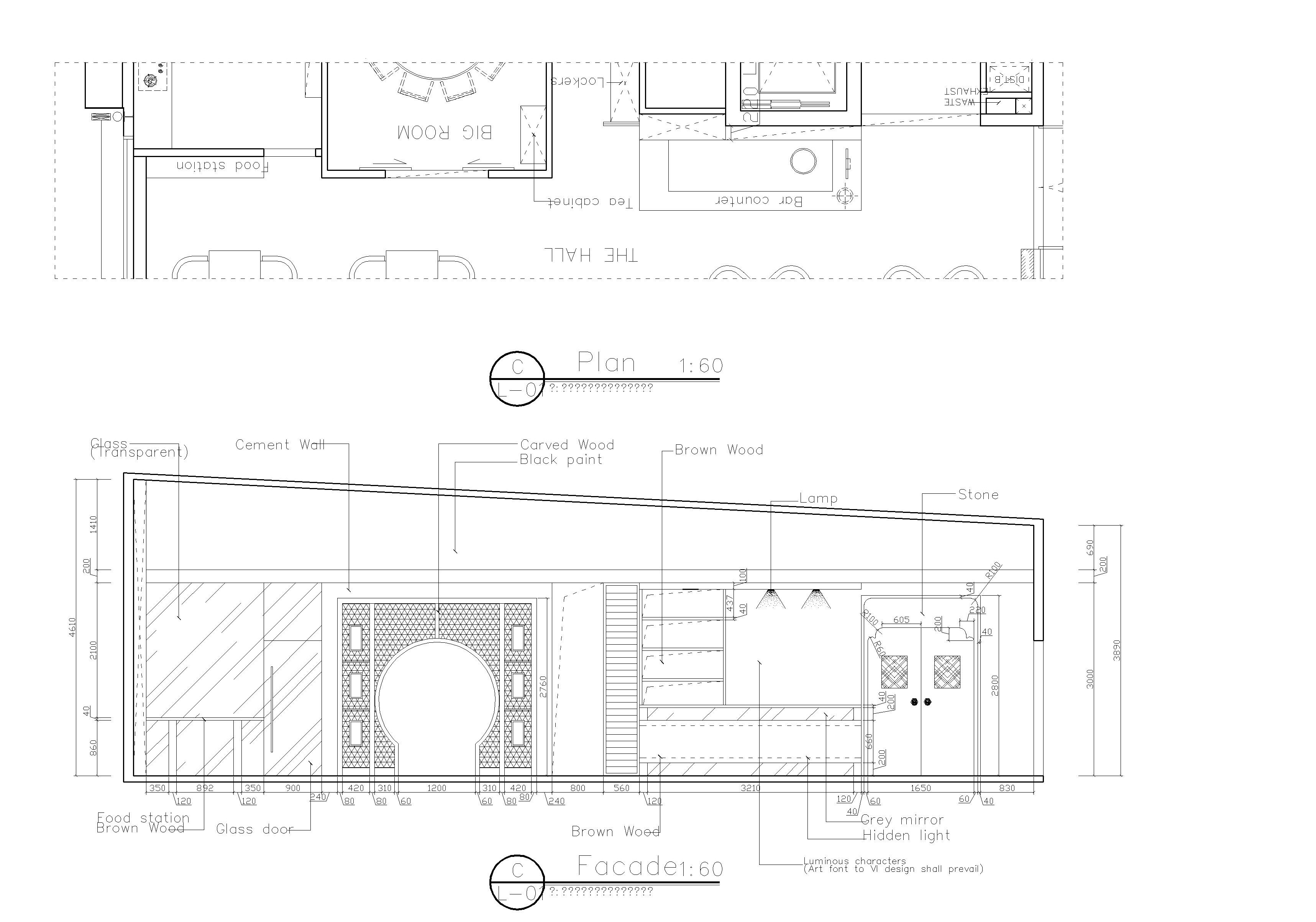
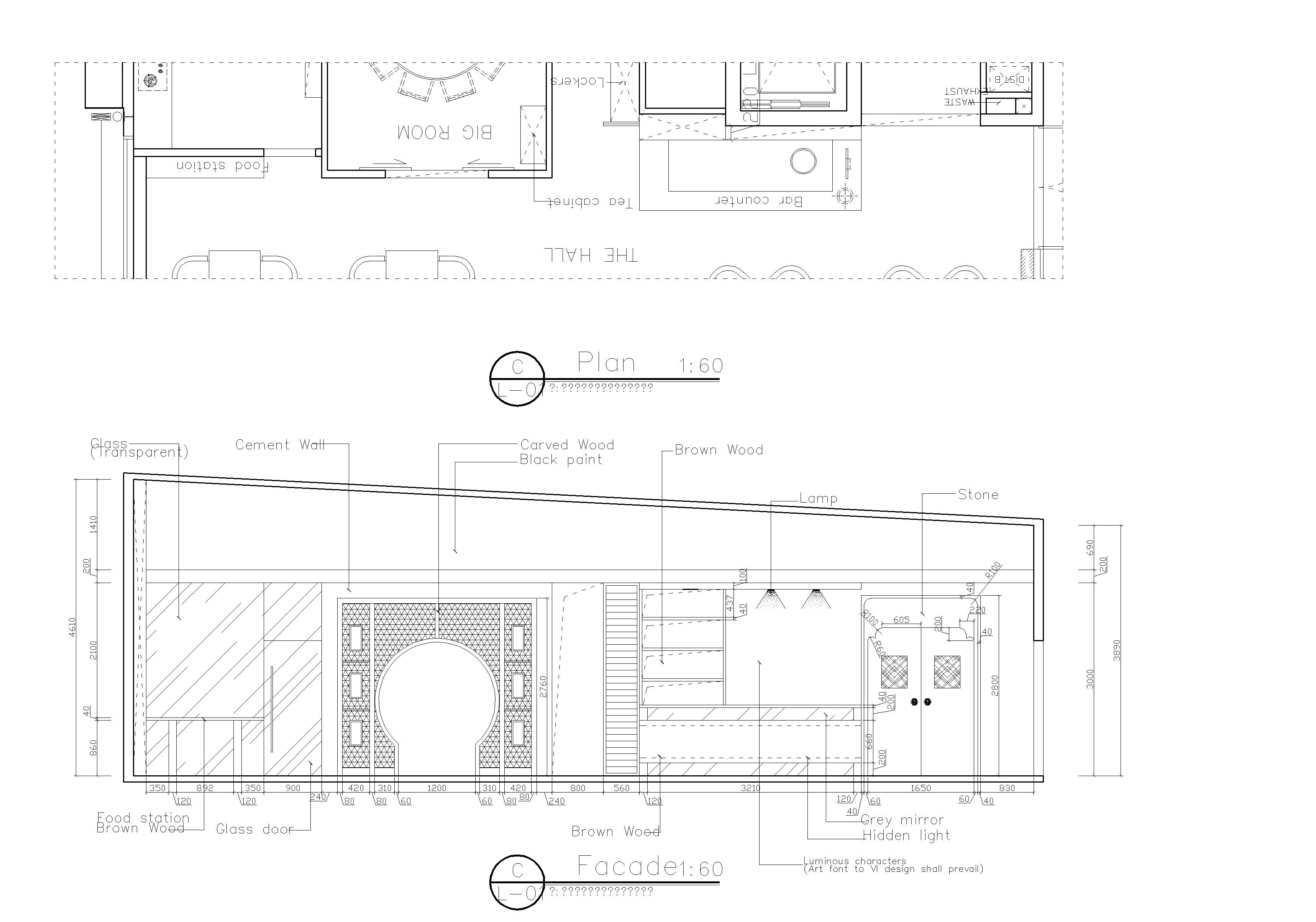
 现代茶会所CAD施工图,超详细的茶会所建筑平面图立面图节点大样图及带建筑效果图设计施工图套图一整套施工图可供下载。易图网为您提供下载服务,好看实用。

 

现代中式茶会所CAD施工图,免费下载

ID:15752
软     件:sketchup 大     小:15.70MB 上 传 时 间:20191023 消 耗 积 分:30
  • 收藏 ()
  • 评论 ()
  • ⚠图纸报错

caoyuan 普通会员

关注
  • 现代简约欧式别墅外观草图大师模型,SU模型免费下载
  • 欧式别墅外观草图大师模型,SU模型免费下载
  • 欧式别墅外观草图大师模型,SU模型免费下载
图纸使用权利说明:

会员在本站下载的原创CAD图库后,只拥有CAD图库的使用权,著作权归原作者及易图网所有。未经合法授权,会员不得以任何形式发布、传播、复制、转售该CAD图库。特别地,不得擅自以易图网名义或使用"易图"、"易图网"(本站注册商标)名称发布、复制、转售所下载的CAD图库,由此给本站造成损害的,本站将依法追究其相关法律责任。

友情链接 热门模型 免费模型