yituLogo
当前的位置:首页 > 室内CAD图纸 > cad > 商业空间 > 商业零售 > KTV大厅包房走道平立面CAD施工图,KTVCAD施工图纸下载

图纸介绍

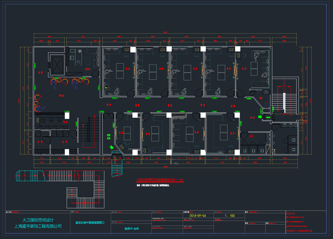
 ktv大厅包房走道平立面CAD施工图,ktvCAD施工图纸下载内容简介:图纸含有天尺寸吊顶图、面铺装图、立面大样图等,内容详实,具有比较高的参考价值。

部分图纸展示:

QQ截图20191113171951.png

 

尺寸吊顶

 

QQ截图20191113172002.png

 

吊灯

 

QQ截图20191113172057.png

 

立面大样图

 

QQ截图20191113172107.png

 

立面大样图

KTV大厅包房走道平立面CAD施工图,KTVCAD施工图纸下载

ID:18441
软     件:sketchup 大     小:5.50MB 上 传 时 间:20191114 消 耗 积 分:30
  • 收藏 ()
  • 评论 ()
  • ⚠图纸报错

qianqian 普通会员

关注
  • 户外垃圾桶
  • 户外垃圾桶
  • 户外垃圾桶
图纸使用权利说明:

会员在本站下载的原创CAD图库后,只拥有CAD图库的使用权,著作权归原作者及易图网所有。未经合法授权,会员不得以任何形式发布、传播、复制、转售该CAD图库。特别地,不得擅自以易图网名义或使用"易图"、"易图网"(本站注册商标)名称发布、复制、转售所下载的CAD图库,由此给本站造成损害的,本站将依法追究其相关法律责任。

友情链接 热门模型 免费模型