SUQQ群
QQ扫一扫
图纸深度:施工图 项目位置:辽宁
设计风格:现代风格 图纸格式:CAD2000,JPG,PPT,DF
设计时间:2016 包含图片:效果图
楼层数:1层
内容简介:效果图、CAD施工图(图纸目录,施工图设计说明、平面图,立面图,节点大样等)材料表,方案,物料书,机电图纸等,在进行商业空间设计时,零售商应该清楚的知道,他们规划的顾客动线,应清楚地了解,哪些产品放在什么位置会有利于引导顾客走入商店的最深层,接触更多深层的商,品,最终获得最多的消费。

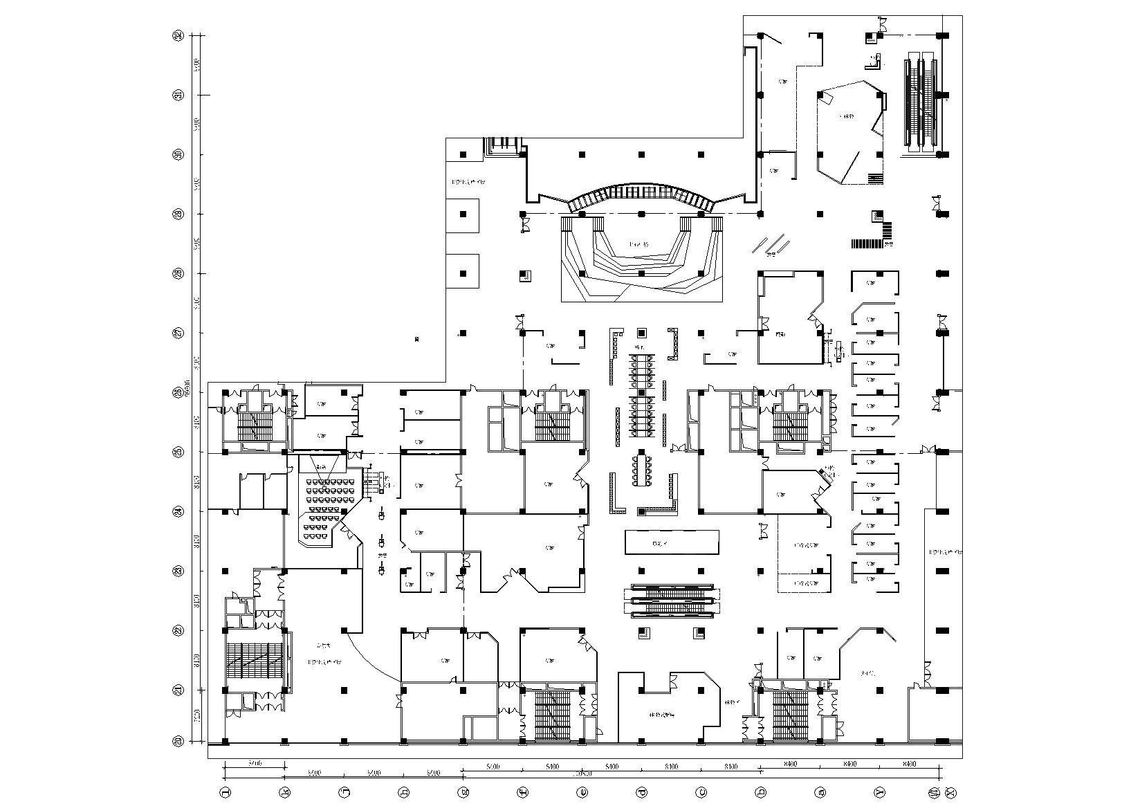
平面布局图

隔墙尺寸图

地面铺装图

天花布置图

天花造型尺寸图


街区剖面图

街区剖面图2

街区效果图-01(入口)

街区效果图-02(主通道)

街区效果图-03(街道)
上一篇:专卖店设计装修施工案例
下一篇:专卖店设计装修施工案例
会员在本站下载的原创CAD图库后,只拥有CAD图库的使用权,著作权归原作者及易图网所有。未经合法授权,会员不得以任何形式发布、传播、复制、转售该CAD图库。特别地,不得擅自以易图网名义或使用"易图"、"易图网"(本站注册商标)名称发布、复制、转售所下载的CAD图库,由此给本站造成损害的,本站将依法追究其相关法律责任。
Copyright 易图网 2006-2025 All Rights Reserved ICP证:蜀ICP备2023015644号-6
四川鑫众焱信息技术服务有限公司| 地址:绵阳市涪城区瀚威城市中心1栋1单元42层2号