yituLogo
当前的位置:首页 > 室内CAD图纸 > cad > 商业空间 > 商业零售 > 手工烘焙坊装修效果方案

图纸介绍

空间类型:店铺,其他                            图纸深度:施工图

项目位置:上海                                    设计风格:现代风格

图纸格式:JPG,CAD2000,PDF            设计时间:2015

包含图片:效果图

资料内容包含:施工图CAD+PDF、全套效果图、暖通图纸等,店铺展示设计就是要最大限度的吸引流量与引流顾客,就一定要在造就适用市场和顾客双向美感需求的同时,重视转达消息的精确性,在达到顾客物质和精神的双向需求,从而激发大家的情绪,调动消费冲动,实现商业收益。

 

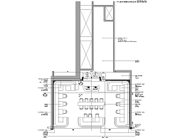
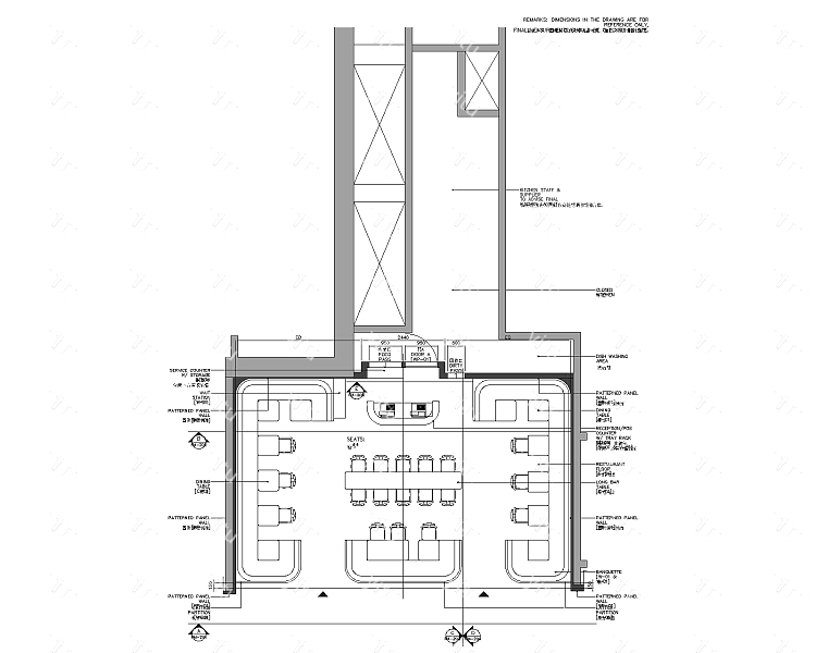
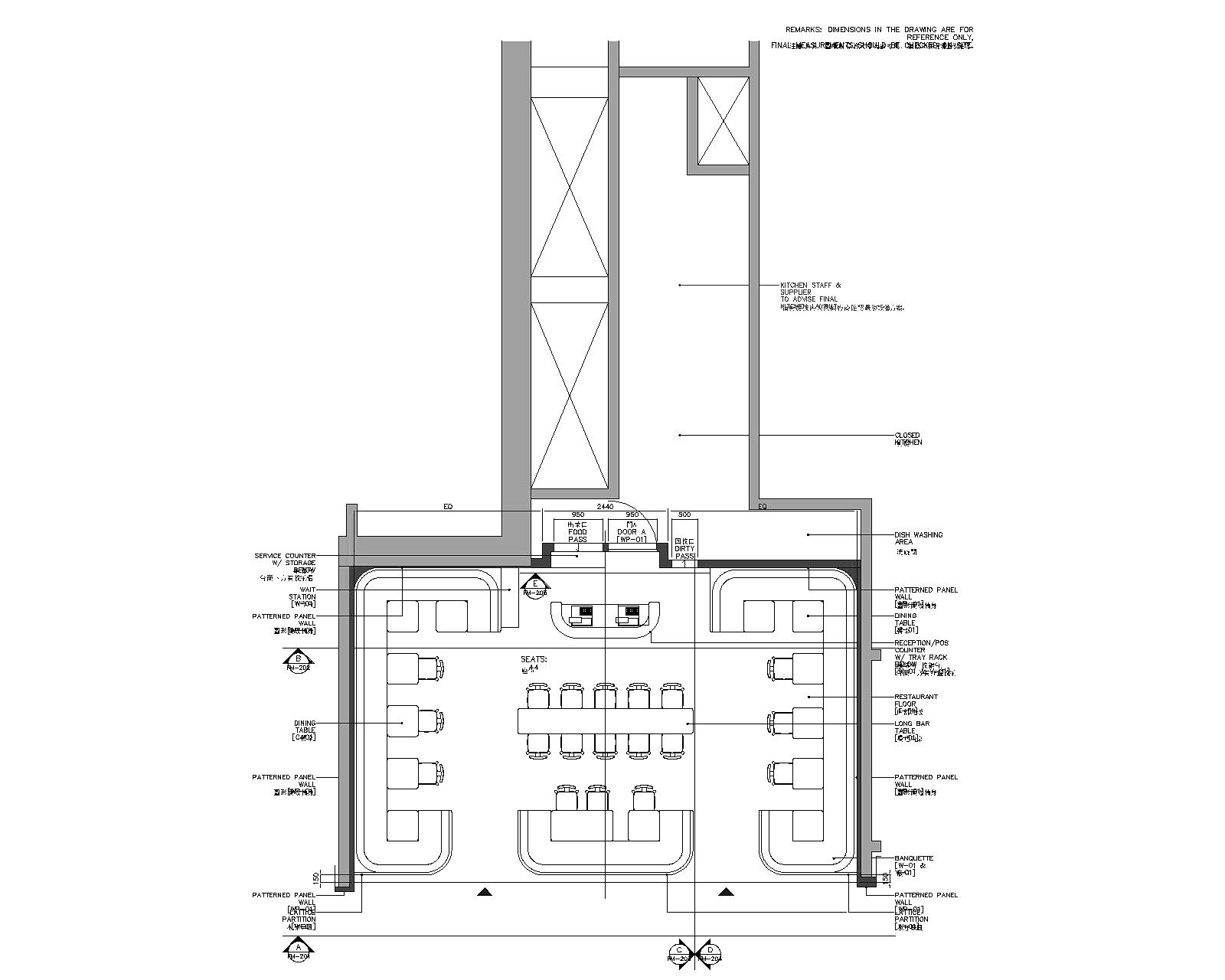
1<a href=https://www.yitu.cn/su/7392.html target=_blank class=infotextkey>平面</a>图_看图王

 

平面

 

2天<a href=https://www.yitu.cn/sketchup/huayi/index.html target=_blank class=infotextkey>花</a>图_看图王

 

 

3<a href=https://www.yitu.cn/su/7656.html target=_blank class=infotextkey>插座</a>配置图_看图王

 

插座配置图

 

4立面图1_看图王

 

立面图1

 

5立面图2_看图王

 

立面图2

 

6立面图3_看图王

 

立面图3

 

0005[4]

 

内装修效果图1

 

0008

 

内装修效果图2

 

0009

 

内装修效果图3

 

0010

 

内装修效果图4

 

0011

 

内装修效果图5

 

总缩略图

 

总缩略图

手工烘焙坊装修效果方案

ID:17072
软     件:sketchup 大     小:37.20MB 上 传 时 间:20191105 消 耗 积 分:30
  • 收藏 ()
  • 评论 ()
  • ⚠图纸报错

wangyiting QQ登陆会员

关注
图纸使用权利说明:

会员在本站下载的原创CAD图库后,只拥有CAD图库的使用权,著作权归原作者及易图网所有。未经合法授权,会员不得以任何形式发布、传播、复制、转售该CAD图库。特别地,不得擅自以易图网名义或使用"易图"、"易图网"(本站注册商标)名称发布、复制、转售所下载的CAD图库,由此给本站造成损害的,本站将依法追究其相关法律责任。

友情链接 热门模型 免费模型