yituLogo
当前的位置:首页 > 室内CAD图纸 > cad > 商业空间 > 售楼中心 > 惠州某楼盘售楼部CAD建筑设计施工图效果图下载

图纸介绍

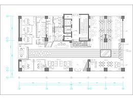
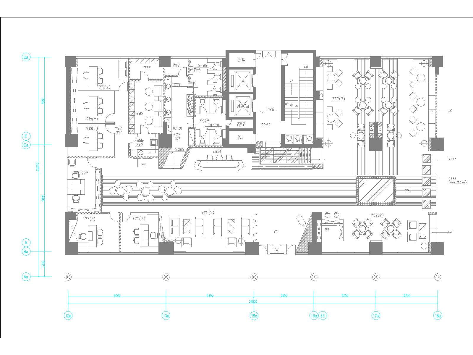
惠州某盘售部CAD建筑设计施工图效果图,图纸包括办公室会议室、会客室、销售部办公室、财务办公室等等,图纸中包括各层平面图纸、立面图装饰图纸、节点大样图纸。易图网为 您提供下载服务,好看实用。

惠州某楼盘售楼部CAD建筑设计施工图效果图下载

ID:14996
软     件:sketchup 大     小:10.90MB 上 传 时 间:20190727 消 耗 积 分:30
  • 收藏 ()
  • 评论 ()
  • ⚠图纸报错

zhangjin 普通会员

关注
  • 苏州古典园林怡园su模型,怡园cad建筑模型下载
  • 苏州狮子园建筑模型,古典私家园狮子林模型下载
  • 苏州古典留园建筑模型,苏州古典园林su模型下载
图纸使用权利说明:

会员在本站下载的原创CAD图库后,只拥有CAD图库的使用权,著作权归原作者及易图网所有。未经合法授权,会员不得以任何形式发布、传播、复制、转售该CAD图库。特别地,不得擅自以易图网名义或使用"易图"、"易图网"(本站注册商标)名称发布、复制、转售所下载的CAD图库,由此给本站造成损害的,本站将依法追究其相关法律责任。

友情链接 热门模型 免费模型