yituLogo
当前的位置:首页 > 室内CAD图纸 > cad > 工装图纸 > 专卖店 > 长城汽车专卖店建筑施工图,汽车专卖店CAD图纸下载

图纸介绍

             空间划分:成套专卖店                                     图纸深度:施工图

            功能类型:汽车专卖店                                      设计风格:现代风格

            图片格式:JPG

资料为:长城汽车专卖店建筑施工图

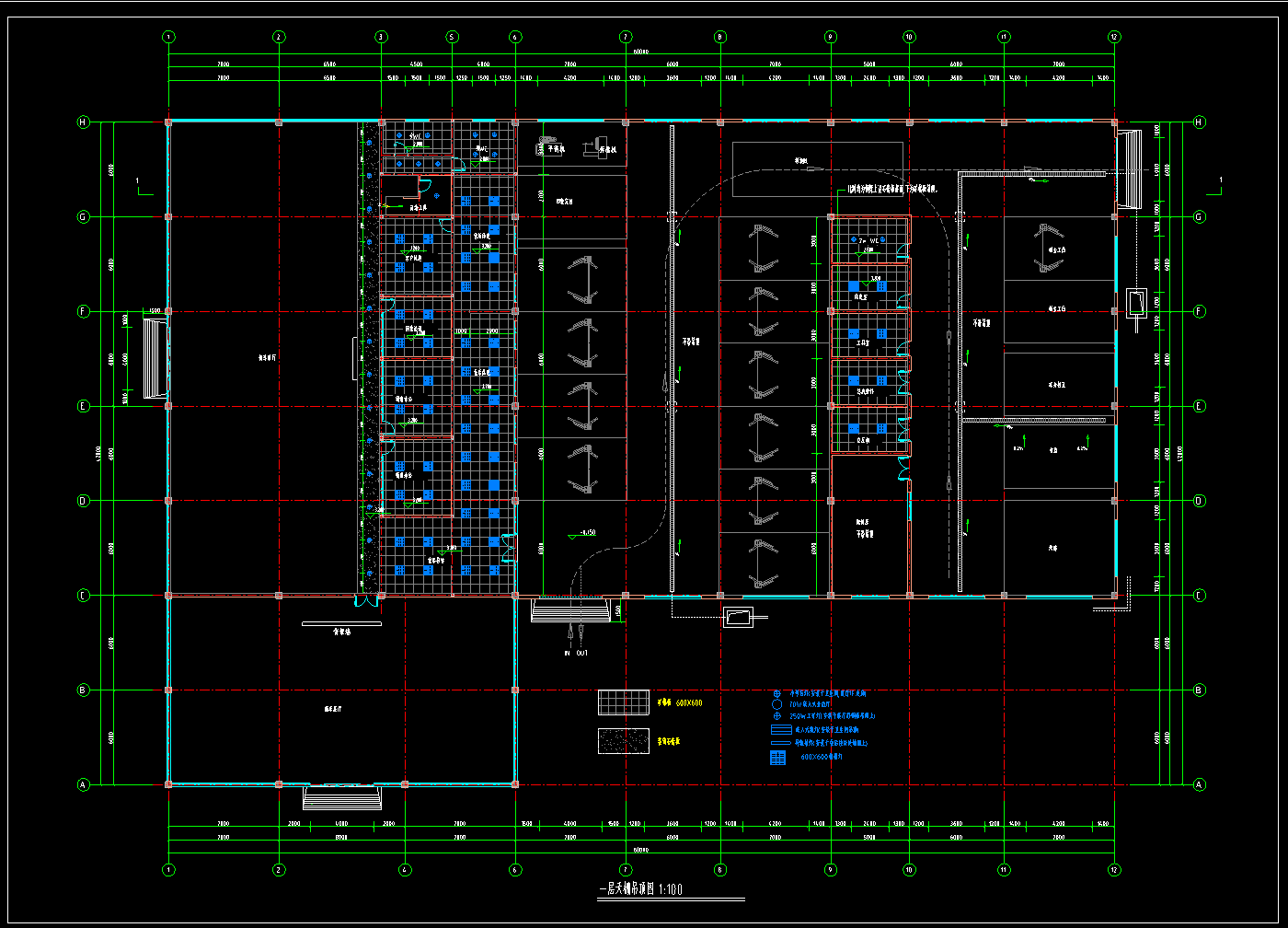
资料内容包括:全套CAD施工图,一层平面布置图,一层面铺装图,一层天棚吊顶图,二层平面布置图,二层面铺装图,二层天棚吊顶图,屋面平面布置图,立面图,二层平面放大图,剖面图,轴立面图,节点大样图等,图纸中无错漏碰缺。作图规范,具有较高的参考价值,可供设计师参考。

部分图纸展示:

QQ截图20200619163818.png

 

三层面铺装图

 

QQ截图20200619163822.png

 

二层天棚吊顶

 

QQ截图20200619163828.png

 

屋面平面布置图

 

QQ截图20200619164049.png

 

立面图

 

QQ截图20200619164055.png

 

剖面图

 

QQ截图20200619164059.png

 

节点大样图

长城汽车专卖店建筑施工图,汽车专卖店CAD图纸下载

ID:24572
软     件:sketchup 大     小:1.10MB 上 传 时 间:20200619 消 耗 积 分:30
  • 收藏 ()
  • 评论 ()
  • ⚠图纸报错

qianqian 普通会员

关注
  • 户外垃圾桶
  • 户外垃圾桶
  • 户外垃圾桶
图纸使用权利说明:

会员在本站下载的原创CAD图库后,只拥有CAD图库的使用权,著作权归原作者及易图网所有。未经合法授权,会员不得以任何形式发布、传播、复制、转售该CAD图库。特别地,不得擅自以易图网名义或使用"易图"、"易图网"(本站注册商标)名称发布、复制、转售所下载的CAD图库,由此给本站造成损害的,本站将依法追究其相关法律责任。

友情链接 热门模型 免费模型