yituLogo
当前的位置:首页 > 室内CAD图纸 > cad > 工装图纸 > 专卖店 > 网红轻奢服装店CAD施工图,服装店工程设计图下载

图纸介绍

            空间划分:成套服装店                                                                                      图纸深度:施工图

            图纸格式:JPG                                                                                                  设计风格:现代

资料为:网红轻奢服装店CAD施工图

资料内容包括:全套网红轻奢服装店CAD施工图,插座布置图,灯具布置图,灯具尺寸图,面铺设图,顶部吊顶图,基础施工图,基础照明线路图,平面布置规划方案图等。该图纸制作详细规范,文字标注统一,细节详尽丰富,内容详实,尺寸大小合理,具有很高的参考价值,可以作为参考学习的模板,供设计师、建筑师下载参考。

部分图纸展示:

<a href=https://www.yitu.cn/su/7872.html target=_blank class=infotextkey>地</a>面铺设图.jpg

 

面铺设图

 

顶部<a href=https://www.yitu.cn/su/7458.html target=_blank class=infotextkey>吊顶</a>图.jpg

 

顶部吊顶

 

基础施工图.jpg

 

基础施工图

 

基础照明线路图.jpg

 

基础照明线路图

 

<a href=https://www.yitu.cn/su/7392.html target=_blank class=infotextkey>平面</a>布置规划方案图.jpg

 

平面布置规划方案图

 

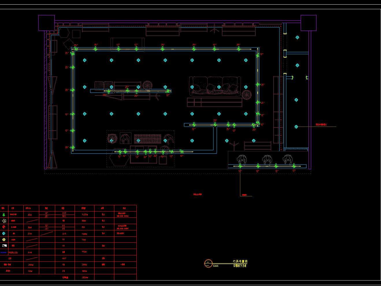
<a href=https://www.yitu.cn/su/6833.html target=_blank class=infotextkey>灯具</a>布置图.jpg

 

灯具布置图

网红轻奢服装店CAD施工图,服装店工程设计图下载

ID:90603
软     件:sketchup 大     小:1.60MB 上 传 时 间:20200915 消 耗 积 分:30
  • 收藏 ()
  • 评论 ()
  • ⚠图纸报错

qianqian 普通会员

关注
  • 户外垃圾桶
  • 户外垃圾桶
  • 户外垃圾桶
图纸使用权利说明:

会员在本站下载的原创CAD图库后,只拥有CAD图库的使用权,著作权归原作者及易图网所有。未经合法授权,会员不得以任何形式发布、传播、复制、转售该CAD图库。特别地,不得擅自以易图网名义或使用"易图"、"易图网"(本站注册商标)名称发布、复制、转售所下载的CAD图库,由此给本站造成损害的,本站将依法追究其相关法律责任。

友情链接 热门模型 免费模型