yituLogo
当前的位置:首页 > 室内CAD图纸 > cad > 工装图纸 > 专卖店 > 现代简约服装专卖店施工图CAD图纸,专卖店cad设计图纸下载

图纸介绍

          空间划分:成套商业空间                                                                                  图纸深度 :施工图

          商业空间类型:专卖店                                                                                     图纸格式:DWG

         设计风格:现代                                                                                                包含图片:效果图

资料为:现代简约服装专卖店施工图

资料内容包括:全套施工图、一层平面图、新建尺寸定位图、天综合图、灯位尺寸图、灯位布置图、面布置图。空间设置合理规范,具有较高的参考价值,可作为参考学习的模板,供设计师、建筑师下载参考。

部分图纸展示如下:

A立面图.jpg

 

A立面图

 

B立面图.jpg

 

B立面图

 

顶面布置图(天<a href=https://www.yitu.cn/sketchup/huayi/index.html target=_blank class=infotextkey>花</a>图).jpg

 

顶面布置图(天图)

 

立面索引图.jpg

 

立面索引图

 

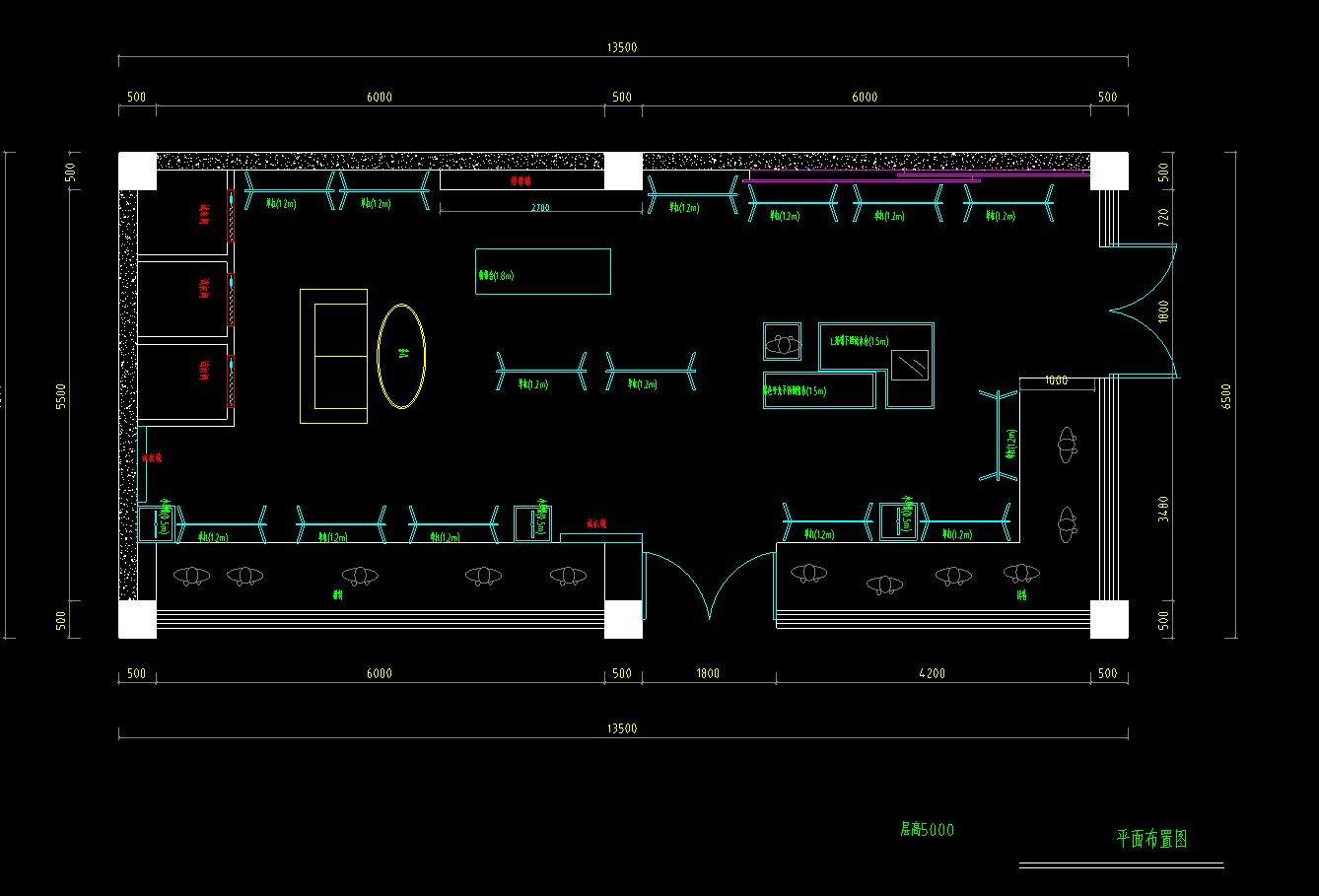
<a href=https://www.yitu.cn/su/7392.html target=_blank class=infotextkey>平面</a>布置图.jpg

 

平面布置图

 

详图.jpg

 

详图

现代简约服装专卖店施工图CAD图纸,专卖店cad设计图纸下载

ID:92858
软     件:sketchup 大     小:1.90MB 上 传 时 间:20220514 消 耗 积 分:10
  • 收藏 ()
  • 评论 ()
  • ⚠图纸报错

qianqian 普通会员

关注
  • 户外垃圾桶
  • 户外垃圾桶
  • 户外垃圾桶
图纸使用权利说明:

会员在本站下载的原创CAD图库后,只拥有CAD图库的使用权,著作权归原作者及易图网所有。未经合法授权,会员不得以任何形式发布、传播、复制、转售该CAD图库。特别地,不得擅自以易图网名义或使用"易图"、"易图网"(本站注册商标)名称发布、复制、转售所下载的CAD图库,由此给本站造成损害的,本站将依法追究其相关法律责任。

友情链接 热门模型 免费模型