yituLogo
当前的位置:首页 > 室内CAD图纸 > cad > 商业空间 > 展厅展馆 > 时尚珠宝展厅设计施工图

图纸介绍

空间划分:成套展览展示                                         空间类型:展厅

图纸深度:施工图                                                    设计风格:现代风格

图纸格式:CAD2000                                               图纸张数:18张

包含图片:效果图

内容简介:

[成都]时尚珠宝展厅设计施工图(含效果图)。采用现代的设计风格,对平面图(平面布置图,天棚造型图,灯具点位图,线路布置图,插座线布置图);立面图(,节柜,大厅);节点图;标准图框;厂置构件表进行初步设计

 

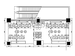
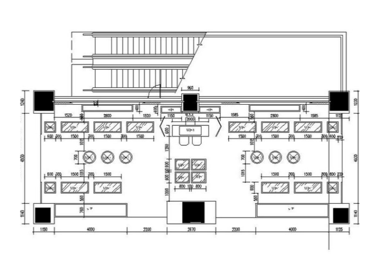
时尚<a href=https://www.yitu.cn/sketchup/zhubao/index.html target=_blank class=infotextkey>珠宝</a><a href=https://www.yitu.cn/sketchup/zhanting/index.html target=_blank class=infotextkey>展厅</a><a href=https://www.yitu.cn/su/7590.html target=_blank class=infotextkey>设计</a><a href=https://www.yitu.cn/su/7392.html target=_blank class=infotextkey>平面</a>图

 

时尚珠宝展厅设计平面

 

时尚<a href=https://www.yitu.cn/sketchup/zhubao/index.html target=_blank class=infotextkey>珠宝</a><a href=https://www.yitu.cn/sketchup/zhanting/index.html target=_blank class=infotextkey>展厅</a><a href=https://www.yitu.cn/su/7590.html target=_blank class=infotextkey>设计</a>立面图

 

时尚珠宝展厅设计立面图

 

时尚<a href=https://www.yitu.cn/sketchup/zhubao/index.html target=_blank class=infotextkey>珠宝</a><a href=https://www.yitu.cn/sketchup/zhanting/index.html target=_blank class=infotextkey>展厅</a><a href=https://www.yitu.cn/su/7590.html target=_blank class=infotextkey>设计</a>立面图

 

时尚珠宝展厅设计立面图

 

时尚<a href=https://www.yitu.cn/sketchup/zhubao/index.html target=_blank class=infotextkey>珠宝</a><a href=https://www.yitu.cn/sketchup/zhanting/index.html target=_blank class=infotextkey>展厅</a><a href=https://www.yitu.cn/su/7590.html target=_blank class=infotextkey>设计</a>立面图

 

时尚珠宝展厅设计立面图

 

时尚<a href=https://www.yitu.cn/sketchup/zhubao/index.html target=_blank class=infotextkey>珠宝</a><a href=https://www.yitu.cn/sketchup/zhanting/index.html target=_blank class=infotextkey>展厅</a><a href=https://www.yitu.cn/su/7590.html target=_blank class=infotextkey>设计</a>立面图

 

时尚珠宝展厅设计立面图

 

时尚<a href=https://www.yitu.cn/sketchup/zhubao/index.html target=_blank class=infotextkey>珠宝</a><a href=https://www.yitu.cn/sketchup/zhanting/index.html target=_blank class=infotextkey>展厅</a><a href=https://www.yitu.cn/su/7590.html target=_blank class=infotextkey>设计</a>效果图

 

时尚珠宝展厅设计效果图

 

时尚<a href=https://www.yitu.cn/sketchup/zhubao/index.html target=_blank class=infotextkey>珠宝</a><a href=https://www.yitu.cn/sketchup/zhanting/index.html target=_blank class=infotextkey>展厅</a><a href=https://www.yitu.cn/su/7590.html target=_blank class=infotextkey>设计</a>效果图

 

时尚珠宝展厅设计效果图

 

时尚<a href=https://www.yitu.cn/sketchup/zhubao/index.html target=_blank class=infotextkey>珠宝</a><a href=https://www.yitu.cn/sketchup/zhanting/index.html target=_blank class=infotextkey>展厅</a><a href=https://www.yitu.cn/su/7590.html target=_blank class=infotextkey>设计</a>效果图

 

时尚珠宝展厅设计效果图

时尚珠宝展厅设计施工图

ID:16955
软     件:sketchup 大     小:0.60MB 上 传 时 间:20191105 消 耗 积 分:30
  • 收藏 ()
  • 评论 ()
  • ⚠图纸报错

strawberry 普通会员

UI社UI社UI社UI社UI社UI社UI社UI社UI社UI社UI社UI社UI社
关注
图纸使用权利说明:

会员在本站下载的原创CAD图库后,只拥有CAD图库的使用权,著作权归原作者及易图网所有。未经合法授权,会员不得以任何形式发布、传播、复制、转售该CAD图库。特别地,不得擅自以易图网名义或使用"易图"、"易图网"(本站注册商标)名称发布、复制、转售所下载的CAD图库,由此给本站造成损害的,本站将依法追究其相关法律责任。

友情链接 热门模型 免费模型